Projekt domu Livorno LMP335 WRB1548

Pow. użytkowa 152,58 m2 Kubatura 846 m3 Wysokość domu 8,62 m
Pow. zabudowy 140,96 m2 Min. szer. działki 20,6 m Kąt nach. dachu 35 st
EUco 39,86 kWh/(m2*rok)
Projekt domu Livorno LMP335 progress

Opis projektu

Oryginalny projekt z asymetrycznym dachem i nietuzinkowymi przeszkleniami dla lubiących nietypowe, ale praktyczne rozwiązania. Dom przeznaczony dla 4-osobowej rodziny. Na parterze znajduje się strefa dzienna: Przestronny salon z kominkiem i wyjściem na częściowo zadaszony taras, duża i wygodna kuchnia, idealna na rodzinne posiłki, łazienka, gabinet oraz przestrzeń gospodarcza, w której skład wchodzi garaż i kotłownia z bezpośrednim wyjściem na zewnątrz. Na piętrze, w strefie nocnej znajdują się trzy wygodne sypialnie, z których każda posiada wyjście na balkon, pojemna garderoba, duża komfortowa łazienka, a także oddzielna pralnia. Do dyspozycji jest również strych.

Projekt został
wycofany z oferty

W razie pytań prosimy o kontakt
z Centrum Obsługi Klienta tel: 71 715 20 60

Rzut kondygnacji projektu Livorno LMP335 - Rzut parteru

1 wiatrołap: 4,85 m2
2 pomieszczenie gospodarcze: 4,71 m2
3 wc: 3 m2
4 korytarz: 10,26 m2 (12,36 m2)
5 pokój: 10,57 m2
6 pokój dzienny: 29,05 m2
7 kuchnia + jadalnia: 16,96 m2
8 kotłownia: 7,62 m2
9 garaż jednostanowiskowy: 19,48 m2
10 podest: (12,38 m2)
11 taras: (69,4 m2)
12 podest: (1,56 m2)

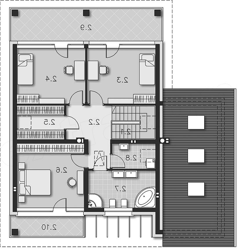
Rzut kondygnacji projektu Livorno LMP335 - Rzut poddasza

1 schody: 3,02 m2 (5,84 m2)
2 korytarz: 8,72 m2
3 pokój: 13,19 m2 (15,02 m2)
4 pokój: 13,19 m2 (15,02 m2)
5 garderoba: 5,25 m2 (6,37 m2)
6 pokój: 14,86 m2 (16,96 m2)
7 łazienka: 8,63 m2 (9,85 m2)
8 pomieszczenie gospodarcze: 3,5 m2 (4,33 m2)
9 balkon: (19,71 m2)
10 balkon: (8,38 m2)

Usytuowanie domu na działce

Przekrój

Koszt budowy domu


Orientacyjny koszt budowy domu w stanie surowym zamkniętym bez instalacji: 282 100 zł.

Technologia budowy domu


Fundamenty - rozwiązanie o podwyższonej izolacji termicznej. Ściany zewnętrzne - Pustak ceramiczny 25 cm + styropian 20 cm. Strop - gęstożebrowy. Dach - tradycyjna więźba ciesielska. Ogrzewanie - c.o. grzejnikowe + c.w.u. - kocioł gazowy (alternatywa paliwo stałe). Wentylacja - grawitacyjna.

Elewacje

autor: Lipińscy Domy Biuro Projektowe ,

Projekty podobne do Livorno LMP335 WRB1548

Serwis prowadzi Extradom.plRegulaminPolityka prywatności