Projekt domu Zosia 4 WAH1885

kontakt - projekty domów | projektydomow.domiporta.pl

Joanna Skoczylas - Kunda

Porady, oferty, zamówienia

Jak zamówić projekt?

22 451 01 70

pn-pt 8-22, sb 10-18

Pow. użytkowa 70,72 m2 Kubatura 438 m3 Wysokość domu 6,73 m
Pow. zabudowy 95,57 m2 Min. szer. działki 16,76 m Kąt nach. dachu 30 st
Pow. dachu 139,7 m2 EUco 47,2 kWh/(m2*rok)
Projekt domu Zosia 4 progress

Opis projektu

Projekt domu Zosia 4 jest kolejną wersją wariantową popularnego projektu domu jednorodzinnego z serii ”Zosia”. Domek ma prostą budowę, prostą bryłę. Dzięki oszczędnej formie i swojej prostocie jest łatwy w budowie, a przez to niedrogi. Jednocześnie dom jest wygodny dzięki funkcjonalnie rozplanowanemu wnętrzu. Zosia 4 jest węższa od podstawowego projektu, przez co zmieści się na węższej parceli. Ma też trochę głębszą bryłę, dzięki czemu wnętrze domu to nadal pierwotne cztery pokoje. Dom przykryty jest dwuspadowym dachem o kącie 30 stopni. Nad parterem przewidziano strop drewniany belkowy, oraz klasyczną więźbę dachową krokwiową. Dzięki temu nad parterem mamy jeszcze sporą przestrzeń magazynową strychu do wykorzystania. Oczywiście wariantowo można wykonać konstrukcję dachu z wiązarów kratownicowych. Do domu wchodzimy przez przedsionek z dużą szafą, wprost do holu i salonu. Z boku przedsionka znajduje się kotłownia - w projekcie bazowym z kotłem gazowym, ale można ją łatwo zaadaptować na kotłownię na paliwo stałe. Obok kotłowni mamy łazienkę, po drugiej stronie dwie sypialnie dziecięce z szafami wbudowanymi i wc. Od strony ogrodu mieści się sypialnia rodziców, oraz oczywiście część dzienna - salon z wypoczynkiem i stołem jadalnym, oraz aneks kuchenny. Na środku salonu mamy ścianę telewizyjno – kominkową. Dom - biorąc pod uwagę niewielką powierzchnię użytkową - jest bardzo funkcjonalny i ma rozbudowany program pomieszczeń. Nie ma tutaj zmarnowanej przestrzeni - wszystko jest zagospodarowane logicznie i praktycznie. Domek z zewnątrz ma bardzo sympatyczną stylistykę. Architektura domu jest bezpretensjonalna i przyjemna dla oka. Budynek będzie się świetnie komponował z otoczeniem zarówno na przedmieściach, jak i na wsi. Zosia 4 jest oczywiście domem całorocznym, ale może też być drugim domem wakacyjnym. Zdecydowaną zaletą domków z serii Zosia jest ich prostota i funkcjonalność, przekładające się na maksymalny efekt inwestycji uzyskany za nieduże pieniądze. Każdą kolejną wersję domu z tej serii staramy się projektować jeszcze lepiej i sensowniej. Dom jest zaprojektowany jako energooszczędny, bardzo dobrze ocieplony. Będzie dzięki temu tani w późniejszej eksploatacji. Zapraszamy !

Kup teraz projekt

Cena: 5490 zł

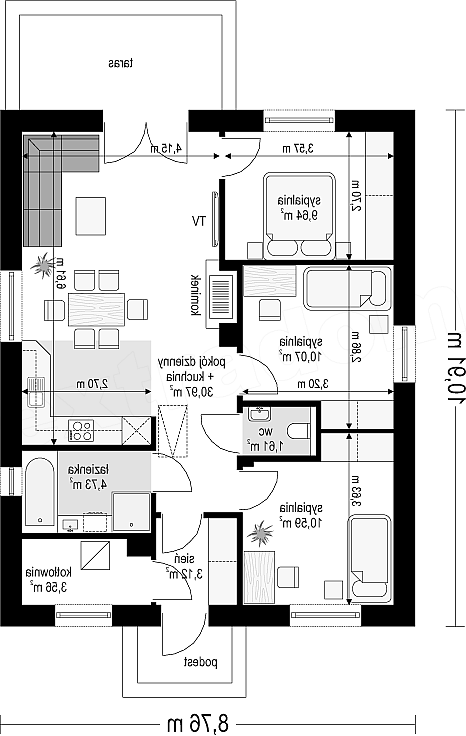
Rzut kondygnacji projektu Zosia 4 - Rzut parteru

1 wiatrołap: 3,12 m2
2 pokój: 10,59 m2
3 wc: 1,61 m2
4 pokój: 10,07 m2
5 pokój: 9,64 m2
6 pokój dzienny + kuchnia + jadalnia: 30,97 m2
7 łazienka: 4,73 m2
8 kotłownia: 3,56 m2

Rzut kondygnacji projektu Zosia 4 - Rzut poddasza

1 strych: 28,93 m2 (78,32 m2)

Usytuowanie domu na działce

Koszt budowy domu


Orientacyjny koszt budowy domu w stanie surowym zamkniętym bez instalacji: 107 731 zł.

Technologia budowy domu


Fundamenty: betonowe ławy i ściany fundamentowe z bloczków betonowych. Ściany zewnętrzne: ściany murowane – bloczki gazobeton 24 cm + styropian. Strop: drewniany belkowy. Elewacje: tynk cienkowarstwowy. Pokrycie dachu: dachówka. Nachylenie dachu: 30 stopni.

Elewacje

autor: MG Projekt
Serwis prowadzi Extradom.plRegulaminPolityka prywatności