Opis projektu
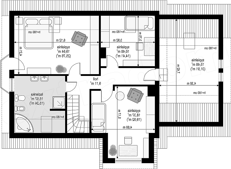
Projekt domu Zgrabny 4 to wersj jednorodzinnej willi dla rodziny cztero-pięcioosobowej. Powstał jako urozmaicony projekt domu Zgrabny. Charakteryzuje się ciekawym portykiem wejściowym na kolumnach, z dużym oknem nad wejściem. Dom Zgrabny 4 to reprezentacyjna architektura i funkcjonalne wnętrze. Garaż został poszerzony i zyskał dodatkową przestrzeń. Na parterze mieszkania oprócz salonu zaprojektowano dodatkowy pokój i łazienkę. Na poddaszu mieszczą się cztery sypialnie i duża łazienka. Pracownia dysponuje również projektem domu Zgrabny 4 w wariancie odbicia lustrzanego oraz inne jego wersje: projekt domu Zgrabny , projekt domu Zgrabny 2 , projekt domu Zgrabny 3 , projekt domu Zgrabny 5 , projekt domu Zgrabny z lukarnami , projekt domu Zgrabny z przedsionkiem. Zapraszamy!
