Opis projektu
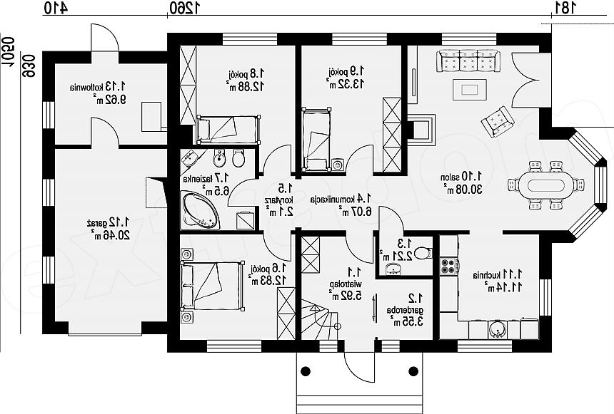
Wygodny dom parterowy. Duży salon z kominkiem, wyjściem na taras i do ogrodu połączony jest z kuchnią. Na parterze ponadto: trzy pokoje, łazienka, wc, oraz garaż i kotłownia. Schody na strych z wiatrołapu. Ozdobą elewacji jest wykusz, który jest miejscem na jadalnię.
