Opis projektu
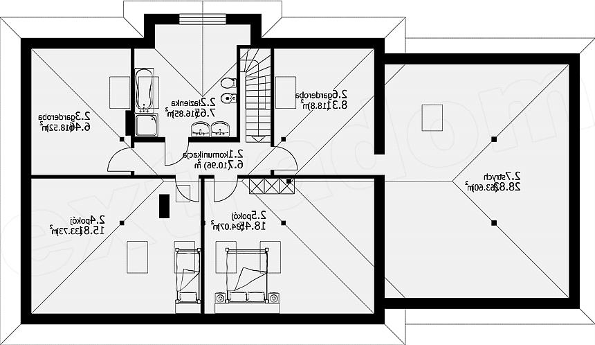
Obszerny w pełni podpiwniczony dom z poddaszem użytkowym. Na parterze salon, wydzielona kuchnia, a także trzy pokoje. Poddasze to dwie sypialnie, dwie garderoby, łazienka oraz strych. Do domu przybudowano dwustanowiskowy garaż z usytuowaną na jego przedłużeniu kotłownią. Piwnica stanowi zaplecze gospodarcze domu.
