Projekt domu Wiola WAH1087

kontakt - projekty domów | projektydomow.domiporta.pl

Joanna Skoczylas - Kunda

Porady, oferty, zamówienia

Jak zamówić projekt?

22 451 01 70

pn-pt 8-22, sb 10-18

Pow. użytkowa 299,13 m2 Kubatura 1305 m3 Wysokość domu 10,21 m
Pow. zabudowy 225,36 m2 Min. szer. działki 24,93 m Kąt nach. dachu 25 st
Pow. dachu 344,4 m2 EUco 49,5 kWh/(m2*rok)
Projekt domu Wiola progress

Opis projektu

Projekt domu Wiola to budynek jednorodzinny dla pięcio-sześcioosobowej, dużej rodziny. Piętrowy przykryty czterospadowym łagodnym dachem z dachówki ceramicznej. Wygląd zewnętrzny domu utrzymany jest w stylu podmiejskiej luksusowej willi - nowoczesnej, ale jednocześnie z elementami tradycji. Wnętrze domu ukształtowano z podziałem na część ogólną, dzienną na parterze, z salonem, jadalnią, półotwartym holem z pięknymi schodami, oraz część prywatną, nocną - na piętrze, z czterema sypialniami i dodatkowym pokojem. W projekcie Wiola sypialnia rodziców stanowi osobny apartament z własną oddzielną łazienką i garderobą. Na parterze, oprócz części dziennej salonu, jadalni i holu zaprojektowano gabinet i dodatkowy pokój - sypialnię gościnną. Z salonu i jadalni zaplanowano szerokie przeszklone otwarcia na ogród, przez dwa niezależne tarasy, podcień oraz pergolę.

Kup teraz projekt

Cena: 7590 zł

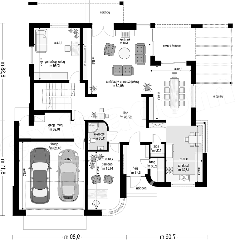
Rzut kondygnacji projektu Wiola - Rzut parteru

1 wiatrołap: 5,48 m2
2 hall: 27,66 m2
3 pokój: 14,31 m2
4 łazienka: 3,63 m2
5 pokój: 17,65 m2
6 pokój dzienny + jadalnia: 50,08 m2
7 kuchnia: 18,34 m2
8 spiżarnia: 1,33 m2
9 garderoba: 2,38 m2
10 pomieszczenie gospodarcze: 10,26 m2
11 garaż dwustanowiskowy: 34,2 m2

Rzut kondygnacji projektu Wiola - Rzut 1 piętra

1 hall: 15,02 m2
2 pokój: 20,84 m2
3 pokój: 17,79 m2
4 pokój: 22,15 m2
5 łazienka: 11,84 m2
6 pokój: 24,13 m2
7 garderoba: 5,79 m2
8 łazienka: 10,84 m2
9 pomieszczenie gospodarcze: 5,67 m2
10 pokój: 24,19 m2

Usytuowanie domu na działce

Technologia budowy domu


Fundamenty: betonowe ławy i ściany fundamentowe z bloczków betonowych. Ściany zewnętrzne: ściany murowane - pustaki porotherm 25 + styropian + tynk cienkowarstwowy. Strop: żelbetowy monolityczny. Elewacje: tynk cienkowarstwowy na styropianie i fragmenty z cegły klinkierowej. Pokrycie dachu: dachówka. Nachylenie dachu: 25 i 30 stopni.

Elewacje

autor: MG Projekt

Projekty podobne do Wiola WAH1087

Serwis prowadzi Extradom.plRegulaminPolityka prywatności