Projekt domu Wera PS WRW1186

kontakt - projekty domów | projektydomow.domiporta.pl

Joanna Skoczylas - Kunda

Porady, oferty, zamówienia

Jak zamówić projekt?

22 451 01 70

pn-pt 8-22, sb 10-18

Pow. użytkowa 128,33 m2 Kubatura 508,49 m3 Wysokość domu 8,46 m
Pow. zabudowy 125,47 m2 Min. szer. działki 18,48 m Kąt nach. dachu 40 st
Projekt domu Wera PS progress

Opis projektu

Projekt zgodny z wymaganiami WT2024. Klasyczny w formie, niewielki dom doskonale nadający się zarówno na miejską jak i podmiejską działkę. Wera przeznaczona jest dla 4-5 osobowej rodziny ceniącej czytelnie rozwiązane układy pomieszczeń i energooszczędność. Po lewej stronie od wejścia znajduje się część dzienna mieszcząca jednorodną przestrzeń kuchni oraz salonu z jadalnią. W ramach adaptacji kuchnię można oddzielić ścianką działową, a w miejscu spiżarni zamontować wysoką, pojemną szafkę. Na parterze w strefie gospodarczej znajduje się garaż z przejściem do części mieszkalnej, oraz kotłownia. Poddasze mieści trzy sypialnie, obszerną łazienkę i dostępną z korytarza garderobę. DOM POSIADA KOTŁOWNIĘ NA PALIWO STAŁE. Projekt w standardzie posiada instalację rekuperacji. Projekt posiada swoją wersję z garażem dwustanowiskowym WERA 2 PS. Projektami podobnymi są posiadający bardziej nowoczesną elewację PANDORA PS i BRUNO.

Kup teraz projekt

Cena: 4200 zł

Rzut kondygnacji projektu Wera PS - Rzut parteru

1 wiatrołap: 4,64 m2
2 hall: 8 m2
3 kuchnia: 9,79 m2
4 spiżarnia: 1 m2
5 pokój dzienny + jadalnia: 27,86 m2
6 pokój: 10,11 m2
7 łazienka: 3,8 m2
8 kotłownia: 9,32 m2
9 garaż jednostanowiskowy: 21,83 m2

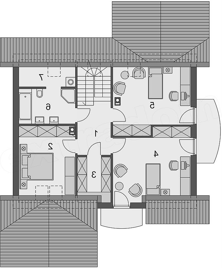
Rzut kondygnacji projektu Wera PS - Rzut poddasza

1 hall: 6,65 m2 (6,73 m2)
2 pokój: 11,94 m2 (16,72 m2)
3 garderoba: 3,83 m2 (5,88 m2)
4 pokój: 17,14 m2 (21,3 m2)
5 pokój: 14,49 m2 (21,18 m2)
6 łazienka: 7,67 m2
7 pomieszczenie gospodarcze: 1,41 m2 (6 m2)

Usytuowanie domu na działce

Przekrój

Koszt budowy domu


Orientacyjny koszt budowy domu w stanie surowym zamkniętym bez instalacji: 210 509 zł.

Technologia budowy domu


Fundamenty: bezpośrednie, na ławach i stopach fundamentowych. Ściany zewnętrzne: bloczki z bet. komórkowego (odm. 600) - 24 cm + styropian TERMO ORGANIKA typ Fasada 12cm. Ściany wewnętrzne: bloczki z bet. komórkowego (odm. 600) - 24 cm (działowe - 12 cm) + działowe z płyty G-K na ruszcie (poddasze). Strop: gęstożebrowy Teriva E oraz żelbetowy monolityczny gr. 20 cm. Elewacje: tynk - System Platinum firmy TERMO ORGANIKA, płytki klinkierowe. Pokrycie dachu: dachówka ceramiczna. Konstrukcja dachu: drewniana o układzie konstrukcyjnym krokwiowo-jętkowym. Schody wewnętrzne: drewniane wg indywidualnego projektu. Ogrzewanie: kocioł gazowy kondensacyjny lub kocioł na paliwo stałe. Projekt jest zgodny z wymaganiami WT2024, a konstrukcja była obliczana zgodnie z eurokodami. W projekcie dodatkowo zastosowano wentylację mechaniczną - rekuperację

Elewacje

autor: Domena

Projekty podobne do Wera PS WRW1186

Serwis prowadzi Extradom.plRegulaminPolityka prywatności