Opis projektu
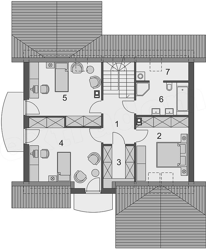
Projekt zgodny z wymaganiami WT2024. Klasyczny w formie, niewielki dom doskonale nadający się zarówno na miejską jak i podmiejską działkę. Wera przeznaczona jest dla 4-5 osobowej rodziny ceniącej czytelnie rozwiązane układy pomieszczeń i energooszczędność. Po lewej stronie od wejścia znajduje się część dzienna mieszcząca jednorodną przestrzeń kuchni oraz salonu z jadalnią. W ramach adaptacji kuchnię można oddzielić ścianką działową, a w miejscu spiżarni zamontować wysoką, pojemną szafkę. Na parterze w strefie gospodarczej znajduje się garaż z przejściem do części mieszkalnej, oraz kotłownia. Poddasze mieści trzy sypialnie, obszerną łazienkę i dostępną z korytarza garderobę. DOM POSIADA KOTŁOWNIĘ NA PALIWO STAŁE. Projekt w standardzie posiada instalację rekuperacji. Projekt posiada swoją wersję z garażem dwustanowiskowym WERA 2 PS. Projektami podobnymi są posiadający bardziej nowoczesną elewację PANDORA PS i BRUNO.
