Projekt domu Wena BSA1547

Pow. użytkowa 151,53 m2 Kubatura 855 m3 Wysokość domu 8,58 m
Pow. zabudowy 153,26 m2 Min. szer. działki 24,28 m Kąt nach. dachu 20 st
Pow. dachu 136,8 m2
Projekt domu Wena progress

Opis projektu

Dom jednorodzinny, dwukondygnacyjny z garażem dwustanowiskowym, niepodpiwniczony. Dzięki dwóm pełnym kondygnacjom istnieje możliwość łatwej aranżacji pomieszczeń. Na piętrze znajdują się trzy sypialnie i łazienka.

Projekt został
wycofany z oferty

W razie pytań prosimy o kontakt
z Centrum Obsługi Klienta tel: 71 715 20 60

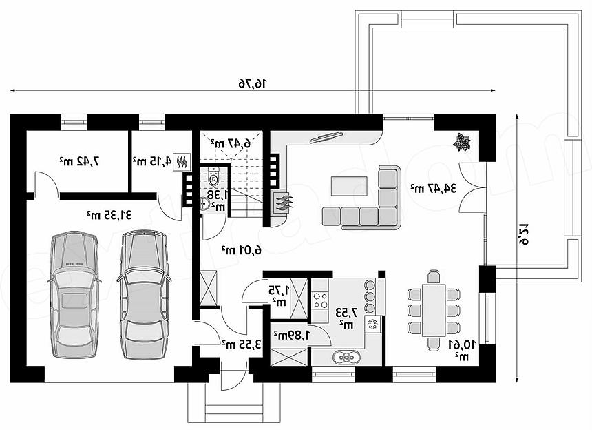
Rzut kondygnacji projektu Wena - Rzut parteru

1 wiatrołap: 3,55 m2
2 hall: 6,01 m2
3 garderoba: 1,75 m2
4 kuchnia: 7,53 m2
5 spiżarnia: 1,89 m2
6 jadalnia: 10,61 m2
7 pokój dzienny: 34,47 m2
8 wc: 1,38 m2
9 schody: 6,47 m2
10 pomieszczenie gospodarcze: 7,42 m2
11 kotłownia: 4,15 m2
12 garaż dwustanowiskowy: 31,35 m2

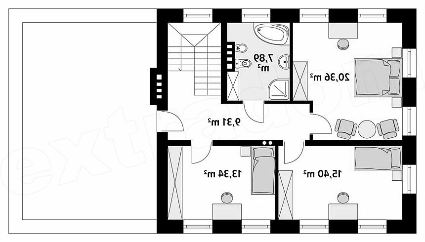
Rzut kondygnacji projektu Wena - Rzut 1 piętra

1 korytarz: 9,31 m2
2 pokój: 13,31 m2
3 pokój: 15,4 m2
4 pokój: 20,36 m2
5 łazienka: 7,89 m2

Usytuowanie domu na działce

Koszt budowy domu


Orientacyjny koszt budowy domu w stanie surowym zamkniętym bez instalacji: 242 762 zł.

Technologia budowy domu


Ściany: 3-warstwowe - pustak ceramiczny + styropian, na poddaszu - ściany 2 warstwowe. Stropy: żelbetowe, wylewane. Dach: dachówka ceramiczna CREATON, kąt nachylenia 20°. Ogrzewanie: gazowe.

Elewacje

autor: Domy w Stylu

Projekty podobne do Wena BSA1547

Serwis prowadzi Extradom.plRegulaminPolityka prywatności