Projekt domu WB-3454 KRA1091

kontakt - projekty domów | projektydomow.domiporta.pl

Joanna Skoczylas - Kunda

Porady, oferty, zamówienia

Jak zamówić projekt?

22 451 01 70

pn-pt 8-22, sb 10-18

Pow. użytkowa 212,9 m2 Kubatura 882,3 m3 Wysokość domu 8,28 m
Pow. zabudowy 118,8 m2 Min. szer. działki 19,82 m Kąt nach. dachu 42 st
Projekt domu WB-3454 progress

Opis projektu

Budynek jednorodzinny, parterowy, z poddaszem mieszkalnym, częściowo podpiwniczony.

Kup teraz projekt

Cena: 3150 zł

Rzut kondygnacji projektu WB-3454 - Rzut piwnicy

1 schody: 11,8 m2
2 pomieszczenie gospodarcze: 7,8 m2
3 kotłownia: 7,3 m2
4 garaż jednostanowiskowy: 23 m2

Rzut kondygnacji projektu WB-3454 - Rzut parteru

1 wiatrołap: 4,7 m2
2 schody: 8,6 m2
3 hall: 8,5 m2
4 garderoba: 3,7 m2
5 pokój: 12,7 m2
6 pokój dzienny: 32,8 m2
7 kuchnia: 14,4 m2
8 pomieszczenie gospodarcze: 4,9 m2
9 wc: 1,5 m2

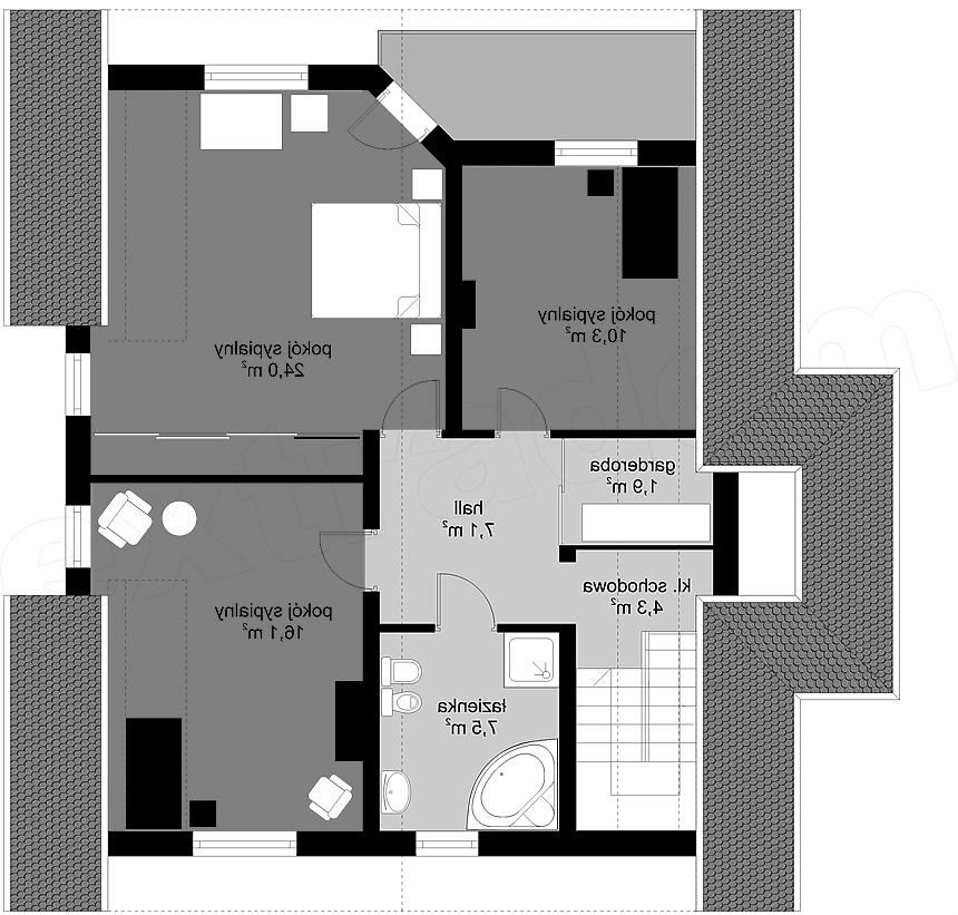
Rzut kondygnacji projektu WB-3454 - Rzut poddasza

1 schody: 4,3 m2
2 hall: 7,1 m2
3 garderoba: 1,9 m2
4 pokój: 10,3 m2
5 pokój: 24 m2
6 pokój: 16,1 m2
7 łazienka: 7,5 m2

Usytuowanie domu na działce

Przekrój

Technologia budowy domu


Ściany zewnętrzne: grubość 36,5 cm z bloczków YTONG; piwnic: gr.35 cm, beton 20 cm + styropian. Strop: nad piwnicą i parterem płyta żelbetowa 12 cm, nad poddaszem drewniany. Schody: żelbetowe, monolityczne. Dach: dwuspadowy o nachyleniu 42 stopnie, więźba drewniana, krycie dachówką ceramiczną. Poziom kalenicy: 8,28 m od terenu.

Elewacje

autor: Agrobisp

Projekty podobne do WB-3454 KRA1091

Serwis prowadzi Extradom.plRegulaminPolityka prywatności