Projekt domu Tryton 2 WOE1094

kontakt - projekty domów | projektydomow.domiporta.pl

Joanna Skoczylas - Kunda

Porady, oferty, zamówienia

Jak zamówić projekt?

22 451 01 70

pn-pt 8-22, sb 10-18

Pow. użytkowa 105,96 m2 Kubatura 810,56 m3 Wysokość domu 7,3 m
Pow. zabudowy 174,75 m2 Min. szer. działki 22,54 m Kąt nach. dachu 30 st
Pow. dachu 241,52 m2 EUco 64,49 kWh/(m2*rok)
Projekt domu Tryton 2 progress

Opis projektu

Wersja z garażem popularnego projektu TRYTON. Prosty dom parterowy z czterospadowym dachem i lekkim stropem drewnianym. Do dyspozycji mieszkańców jest duży, dobrze oświetlony salon, kuchnia z praktyczną spiżarnią, 3 ustawne pokoje, łazienka z miejscem na wannę i prysznic oraz niewielka pralnia. Przez garderobę dostaniemy się natomiast do garażu, za którym znalazła się spora kotłownia. W domu zaprojektowano 2 rodzaje ogrzewania: GAZOWE oraz na PALIWO STAŁE. Dzięki takiemu zabiegowi, projektu nie trzeba przerabiać, inwestor sam decyduje, który rodzaj ogrzewania zastosuje w swoim domu - dokumentacja zawiera schematy i rozwinięcia instalacji c.o. i elektrycznych dla obydwu rozwiązań. W korytarzu zaprojektowano schody składane prowadzące na strych. Dla przyszłych inwestorów będzie on przydatnym miejscem składowania różnych rzeczy. Dom ma prostą bryłę, dzięki czemu będzie tani w budowie i późniejszej eksploatacji. Uwaga! Dokumentacja Projektowa nie zawiera elementów małej architektury takich jak: donice, podesty, altany, grille ogrodowe, murki, pergole, a także innych elementów wizualizacji, takich jak: garaże i wiaty wolnostojące, drogi, podjazdy, ogrodzenia, baseny itp.

Kup teraz projekt

Cena: 4199 zł

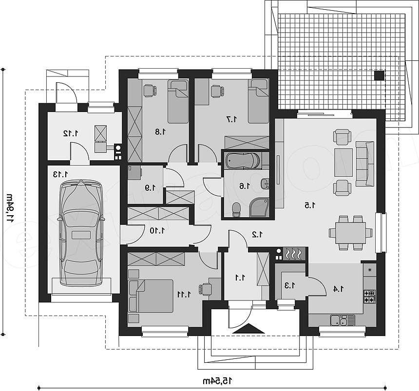
Rzut kondygnacji projektu Tryton 2 - Rzut parteru

1 wiatrołap: 4,26 m2
2 korytarz: 8,5 m2
3 spiżarnia: 2,21 m2
4 kuchnia: 8,6 m2
5 pokój dzienny + jadalnia: 27,8 m2
6 łazienka: 5,85 m2
7 pokój: 11,19 m2
8 pokój: 10,24 m2
9 pomieszczenie gospodarcze: 2,68 m2
10 garderoba: 4,85 m2
11 pokój: 12,9 m2
12 kotłownia: 6,88 m2
13 garaż jednostanowiskowy: 18,5 m2

Usytuowanie domu na działce

Przekrój

Koszt budowy domu


Orientacyjny koszt budowy domu w stanie surowym zamkniętym bez instalacji: 244 988 zł.

Technologia budowy domu


Budynek posadowiony został na fundamentach betonowych. Ściany zewnętrzne dwuwarstwowe z betonu komórkowego. Ściany wewnętrzne z betonu komórkowego jak i z płyty gipsowo-kartonowej [na ruszcie]. Strop drewniany. Więźba dachowa drewniana. Pokrycie dachu - dachówka ceramiczna lub cementowa. Ogrzewanie gazowe lub na paliwo stałe.

Elewacje

autor: Archiportal
Serwis prowadzi Extradom.plRegulaminPolityka prywatności