Opis projektu
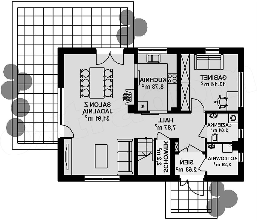
Dom sprawdzi się doskonale na działce z wjazdem od południa jak również od północy. Niezwykle funkcjonalny, dzięki pokojowi na parterze, który według potrzeb może zmienić się w gabinet lub dodatkowy pokój dla osoby starszej. Dom posiada dwa pomieszczenia pomocnicze tzw. „schowki”, które doskonale sprawdzają się np. jako garderoba. Poddasze mieści trzy sypialnie i dużą łazienkę.
