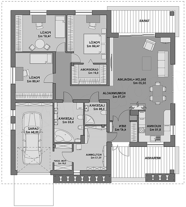
Opis projektu
Wygodny i funkcjonalny dom parterowy, dla cztero lub pięcioosobowej rodziny. Przestronny salon z kominkiem i jadalnią oraz otwarta kuchnia tworzą spójną otwartą przestrzeń dzienną. Dwie łazienki, sypialnia z garderobą i wygodne pokoje dla dzieci tworzą intymną strefę dla domowników. Nie zabrakło tu również pomieszczeń dodatkowych, które ułatwiają codzienne życie, jak duża kotłownia i składzik przy garażu.
