Opis projektu
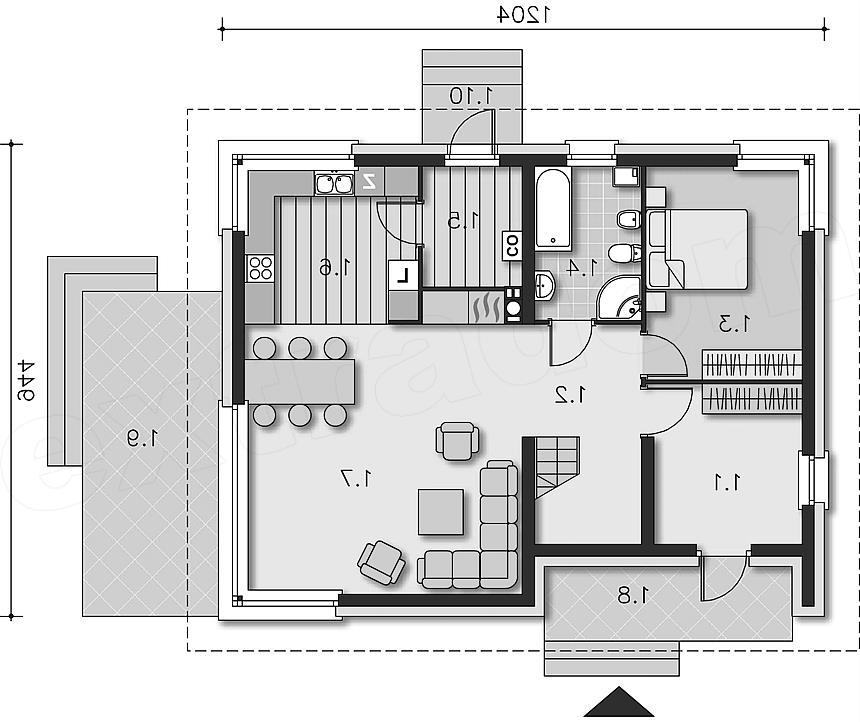
Świetny, nowoczesny projekt domu o bardzo proporcjonalnej bryle i ładnym wykończeniu, nadający się na działki z wjazdem od południa. Jest to energooszczędna wersja domu Tivoli, w którym przestawiliśmy umiejscowienie schodów. Uzyskaliśmy powiększenie salonu i bardzo wygodną strefę wejściową. Na parterze znajduje się duża sypialnia, która dzięki sąsiedztwu dużej łazienki może być da rodziców, a poddasze może być wtedy przeznaczone dla dzieci. Układ pomieszczeń na poddaszu można dostosować do własnych potrzeb, wykorzystując dodatkowe pomieszczenia na pralnię, garderoby, lub włączyć do powierzchni pokoi.
