Opis projektu
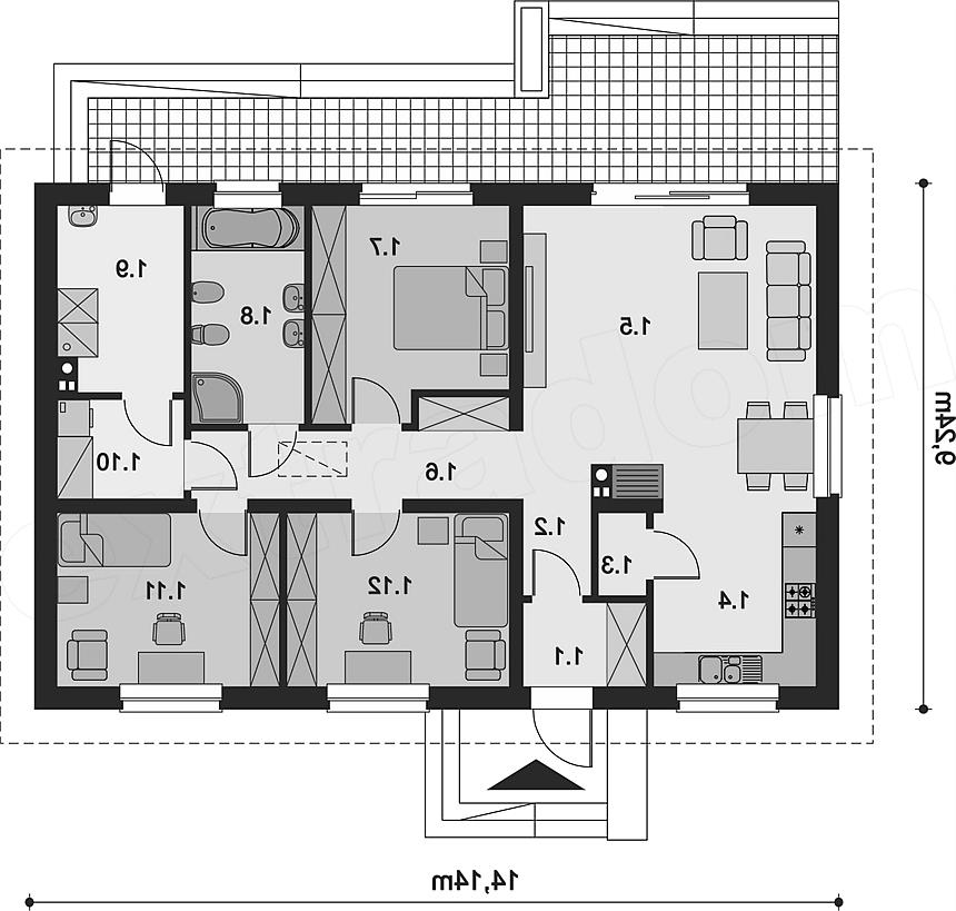
Dom parterowy przeznaczony dla 3-4 osobowej rodziny. Wnętrze budynku podzielono na 3 strefy. Strefa dzienna to przestronny, dobrze oświetlony salon, połączony z otwartą kuchnią, w sąsiedztwie której znajduje się praktyczna spiżarnia. Kuchnię, w razie potrzeby, można w łatwy sposób wydzielić, odgradzając ją ścianką od pokoju dziennego. Centralne usytuowania kominka ułatwi ogrzewanie domu zimą. Strefa nocna to 3 ustawne pokoje i łazienka, w której zmieści się wanna i prysznic. W głównej sypialni przewidziano miejsce na ciąg praktycznych szaf przesuwnych. Posiada ona także wyjście na taras. Strefę gospodarczą zaplanowano na krańcu budynku, składają się na nią: pralnia oraz duża kotłownia, z bezpośrednim wyjściem na zewnątrz. Pomieszczenia te mogą być połączone, tworząc jedno duże. W korytarzu przewidziano schody składane, umożliwiające dostęp na sporych rozmiarów strych. W domu zaprojektowano dwa rodzaje ogrzewania: GAZOWE oraz na PALIWO STAŁE. Od przyszłego inwestora zależy, które z nich wykorzysta. Dom ma prostą bryłę i nieskomplikowany dach, dzięki czemu jest tani w budowie i późniejszej eksploatacji. Budynek zaprojektowano w oparciu o najnowsze przepisy prawa budowlanego, z dużą dbałością o jego wpływ na środowisko naturalne. Uwaga! Dokumentacja Projektowa nie zawiera elementów małej architektury takich jak: donice, podesty, altany, grille ogrodowe, murki, pergole, a także innych elementów wizualizacji, takich jak: garaże i wiaty wolnostojące, drogi, podjazdy, ogrodzenia, baseny itp.
