Opis projektu
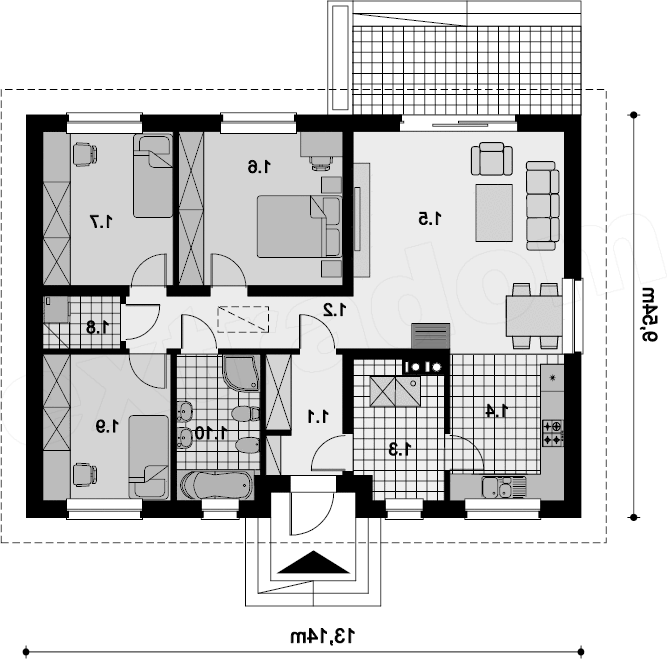
Dom parterowy przeznaczony dla 3-4 osobowej rodziny. W ciągu dnia mieszkańcy mogą się relaksować w przestronnym, dobrze oświetlonym salonie, połączonym z otwartą kuchnią. W jej sąsiedztwie znajduje się duża kotłownia z bezpośrednim dostępem zarówno z kuchni jaki i wiatrołapu. Dzięki temu może ona pełnić również rolę spiżarni. Centralne usytuowania kominka ułatwi ogrzewanie domu zimą. Do dyspozycji domowników są jeszcze 3 ustawne pokoje i łazienka, w której zmieści się wanna i prysznic. W głównej sypialni przewidziano miejsce na ciąg szaf przesuwnych. Nie zapomniano również o praktycznej pralni, którą w razie potrzeby można zaadaptować na schowek lub garderobę. W korytarzu przewidziano schody składane, umożliwiające dostęp na sporych rozmiarów strych. W domu zaprojektowano dwa rodzaje ogrzewania: GAZOWE oraz na PALIWO STAŁE. Od przyszłego inwestora zależy, które z nich wykorzysta. Dom ma prostą bryłę i nieskomplikowany dach, dzięki czemu jest tani w budowie i późniejszej eksploatacji. Budynek zaprojektowano w oparciu o najnowsze przepisy prawa budowlanego, z dużą dbałością o jego wpływ na środowisko naturalne. Uwaga! Dokumentacja Projektowa nie zawiera elementów małej architektury takich jak: donice, podesty, altany, grille ogrodowe, murki, pergole, a także innych elementów wizualizacji, takich jak: garaże i wiaty wolnostojące, drogi, podjazdy, ogrodzenia, baseny itp.
