Opis projektu
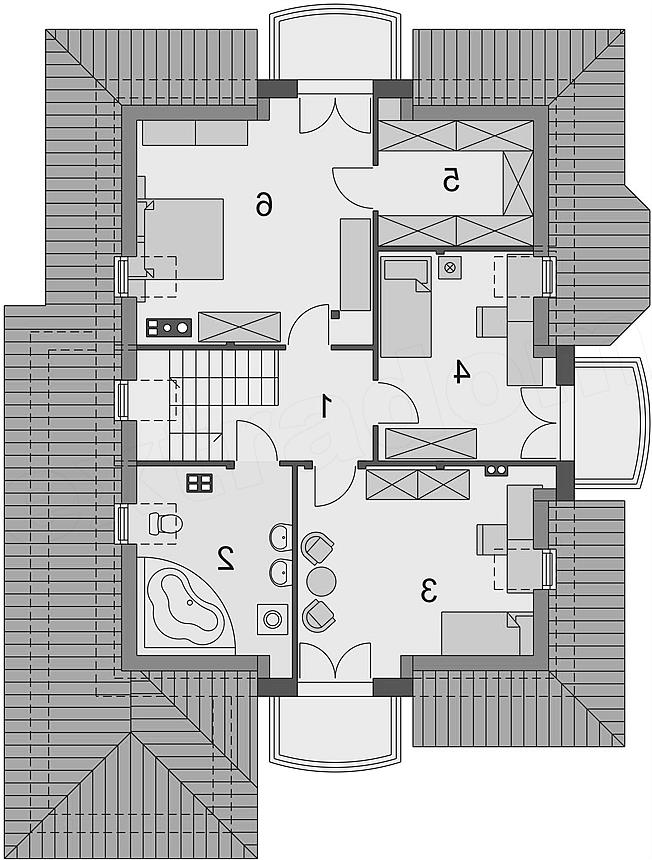
Dom jednorodzinny przeznaczony dla 4-5 osobowej rodzinny, o tradycyjnej bryle. Uniwersalna forma domu, pozwoli na wkomponowanie się w każde otoczenie. Parter to przede wszystkim otwarte, przestrzenne i słoneczne wnętrze. Powierzchnia wiatrołapu pozwoli na funkcjonalne wykorzystanie przestrzeni dodatkowymi szafami pod zabudowę. Usytuowanie spiżarni naprzeciw kuchni doceni każda Pani domu. Dodatkowy pokój umieszczony w pobliżu funkcjonalnej łazienki może pełnić rolę pokoju gościnnego, co sprawi wydzielenie strefy intymnej dla gościa i domowników. Poddasze to trzy, przestronne pokoje z balkonami oraz ogólnodostępna, wygodna łazienka. Zaletą pokoju przeznaczonego dla gospodarzy jest dostęp do przylegającej do pokoju garderoby. Projekt w standardzie posiada dodatkowo projekt ogrzewania kominkiem z płaszczem wodnym.