Opis projektu
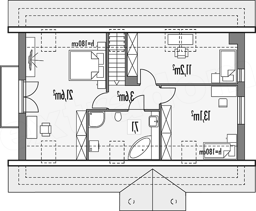
Stanley - piętrowy dom dla 3-5 osobowej rodziny, z wbudowanym garażem, z możliwością dobudowy wiaty na drugie auto. Mimo niewielkich gabarytów, dom oferuje stosunkowo dużą przestrzeń mieszkalną dzięki połączeniu salonu i jadalni z otwartą kuchnią poprzez barek. Widok na schody, duże przeszklenia drzwi tarasowych dodatkowo wpływają na przestronność wnętrza. Dwuspadowa konstrukcja dachu i stropu oraz optymalne wykorzystanie przestrzeni poddasza wpływa na zminimalizowanie kosztu uzyskania powierzchni użytkowej w budynku. Przedstawiona wersja projektu - Stanley B - ma powiększoną jadalnię o wykusz, który jest jednocześnie tarasem dostępnym z sypialni rodziców na piętrze.
