Projekt domu Sofia VI LMB41e WRB1475

kontakt - projekty domów | projektydomow.domiporta.pl

Joanna Skoczylas - Kunda

Porady, oferty, zamówienia

Jak zamówić projekt?

22 451 01 70

pn-pt 8-22, sb 10-18

Pow. użytkowa 83,02 m2 Kubatura 705 m3 Wysokość domu 6,51 m
Pow. zabudowy 149,81 m2 Min. szer. działki 23,7 m Kąt nach. dachu 35 st
EUco 37,64 kWh/(m2*rok)
Projekt domu Sofia VI LMB41e progress

Opis projektu

Kolejna wersja uroczego niewielkiego domu Sofia, tym razem z garażem na dwa auta i drewnianym stropem. Atrakcyjna bryła, urozmaicona pięknie zaprojektowanym wejściem i wykuszem ogrodowym, kryje funkcjonalne wnętrze. Do dyspozycji mieszkańców przewidziano salon z kominkiem, dużą kuchnię, dwie ustawne sypialnie i wygodną łazienkę. Zlokalizowana za garażem kotłownia, z niezależnym wyjściem na zewnątrz, pozwala na umieszczenie w niej pieca na paliwo stałe.

Kup teraz projekt

Cena: 4490 zł

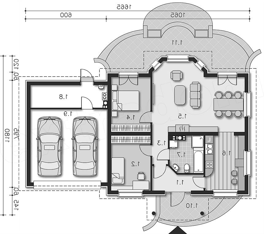
Rzut kondygnacji projektu Sofia VI LMB41e - Rzut parteru

1 wiatrołap: 5,55 m2
2 pokój: 11,88 m2
3 korytarz: 2,73 m2
4 pokój: 11,95 m2
5 pokój dzienny: 32,27 m2
6 kuchnia: 12,11 m2
7 łazienka: 6,53 m2
8 kotłownia: 9,43 m2
9 garaż dwustanowiskowy: 30,82 m2
10 podest: (7,57 m2)
11 taras: (22,59 m2)

Usytuowanie domu na działce

Przekrój

Koszt budowy domu


Orientacyjny koszt budowy domu w stanie surowym zamkniętym bez instalacji: 249 100 zł.

Technologia budowy domu


Fundamenty - rozwiązanie o podwyższonej izolacji termicznej. Ściany zewnętrzne - Bloczek betonu komórkowego 24 cm + styropian 20 cm. Strop - drewniany. Dach - tradycyjna więźba ciesielska. Ogrzewanie - c.o. grzejnikowe + c.w.u. - kocioł gazowy, c.w.u - kolektory słoneczne. Wentylacja - grawitacyjna.

Elewacje

autor: Lipińscy Domy Biuro Projektowe , dr inż. arch. Ludwika Juchniewicz-Lipińska, dr inż. arch. Miłosz Lipiński

Projekty podobne do Sofia VI LMB41e WRB1475

Serwis prowadzi Extradom.plRegulaminPolityka prywatności