Opis projektu
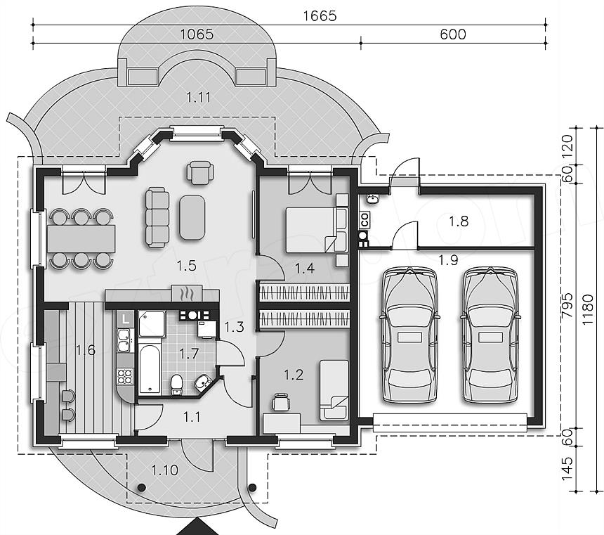
Kolejna wersja uroczego niewielkiego domu Sofia, tym razem z garażem na dwa auta i drewnianym stropem. Atrakcyjna bryła, urozmaicona pięknie zaprojektowanym wejściem i wykuszem ogrodowym, kryje funkcjonalne wnętrze. Do dyspozycji mieszkańców przewidziano salon z kominkiem, dużą kuchnię, dwie ustawne sypialnie i wygodną łazienkę. Zlokalizowana za garażem kotłownia, z niezależnym wyjściem na zewnątrz, pozwala na umieszczenie w niej pieca na paliwo stałe.
