Opis projektu
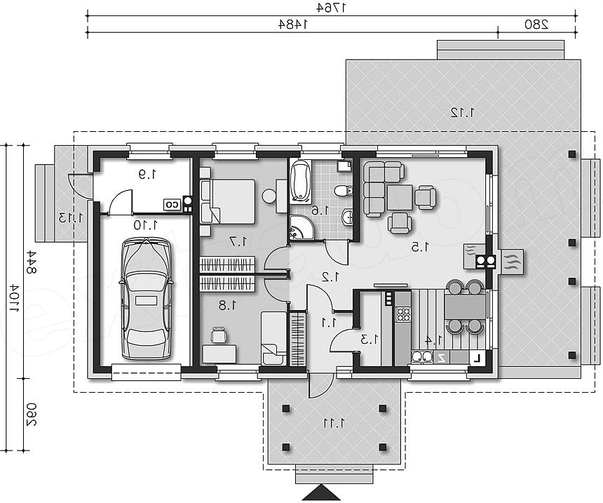
Savona to dom pięknie komponujący się z otoczeniem, a dzięki dużemu zadaszonemu tarasowi, wręcz możemy odnieść wrażenie, że ogród jest letnim salonem, zapraszającym do relaksu i biesiad w gronie rodziny. Dom posiada dwie sypialnie, więc może być doskonałą propozycją dla osób na emeryturze, gdzie dodatkowy pokój może służyć jako gościnny dla odwiedzających dzieci, a na co dzień także gabinetu. Nieduża powierzchnia domu to wygodne i ekonomiczne rozwiązanie.
