Opis projektu
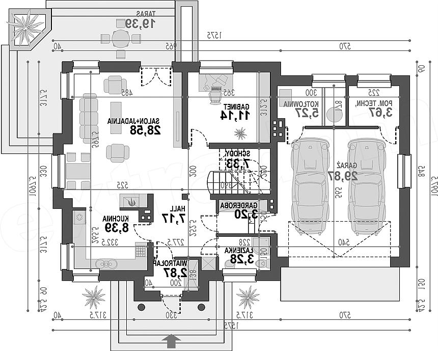
Jest to wersja stylowego, klasycznego domu Rumcajs N z podwójnym garażem. Zastosowanie większego garażu korzystnie wpłynęło na powierzchnię użytkową i funkcjonalność pokoju nad garażem – ma on teraz o 6,5 m? większą powierzchnię użytkową i dwa dodatkowe pomieszczenia: garderobę i przestronną łazienkę. Taki układ pokoju powoduje, że jest to idealne miejsce na sypialnię rodziców. Pozostałe pokoje na poddaszu są bardzo przestronne, dzięki czemu można w różny sposób aranżować ich wystrój, co w małych przestrzeniach jest mocno ograniczone. Dwie garderoby – w tym jedna ogólnodostępna – również podnoszą komfort użytkowania. Rozplanowanie wszystkich pomieszczeń – zarówno na parterze jak i na poddaszu – jest tak zaprojektowane, by zmninimalizować przestrzenie komunikacyjne na rzecz powierzchni użytkowych. Niewątpliwą zaletą parteru jest dodatkowy pokój w tylnej części domu idealnie pasujący na gabinet lub jako dodatkowa sypialnia dla domowników lub gości.
