Opis projektu
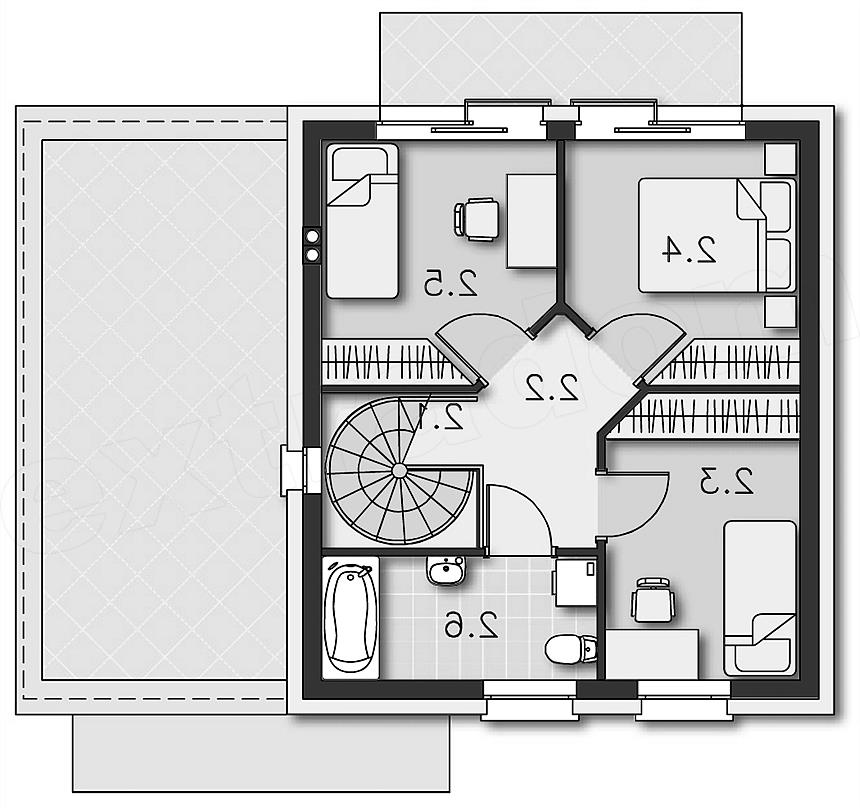
Funkcjonalny i nowoczesny dom jednorodzinny z płaskim dachem, przewidziany w standardzie energooszczędnym, idealny dla niewielkiej rodziny. Parter w całości przeznaczono na jedną część wspólną, do której należy kuchnia, jadalnia i salon z przeszklonym wyjściem na taras. Kręcone schody dodają pomieszczeniu uroku i prowadzą na drugą kondygnację, gdzie znajdują się trzy sypialnie i łazienka. W zwartą, prostą bryłę domu wpisano garaż na jedno auto, za którym znajduje się kotłownia.
