Opis projektu
Raul (dwulokalowy) oferuje możliwość zamieszkania pod jednym dachem dwóm rodzinom, przy jednoczesnym zachowaniu prywatności i wygody. Starannie dopracowany
Joanna Skoczylas - Kunda
Porady, oferty, zamówienia
22 451 01 70
pn-pt 8-22, sb 10-18
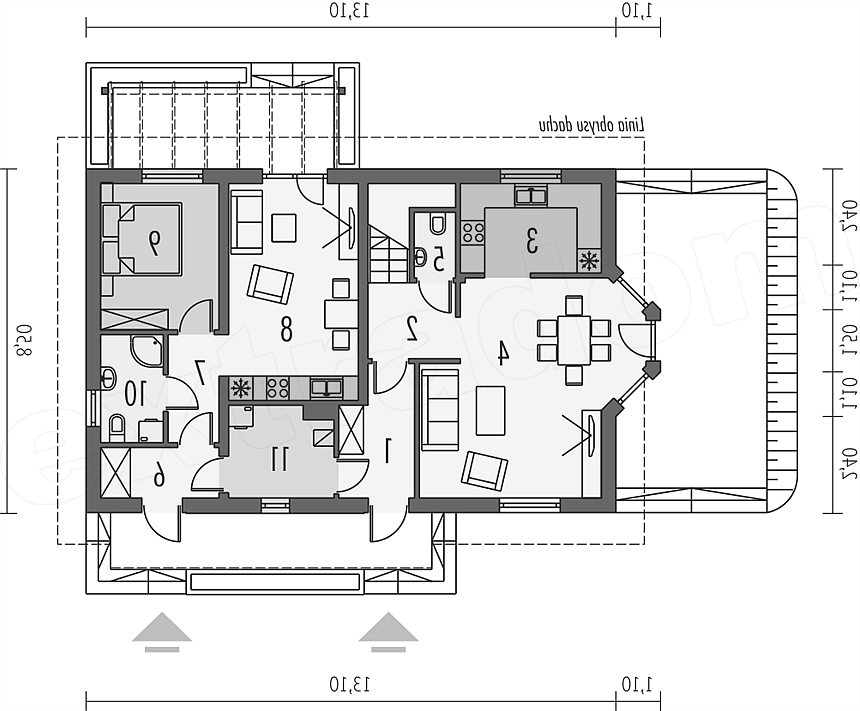
Pow. użytkowa | 152,78 m2 | Kubatura | 468,35 m3 | Wysokość domu | 8,94 m |
Pow. zabudowy | 114,48 m2 | Min. szer. działki | 22,18 m | Kąt nach. dachu | 45 st |
Pow. dachu | 202 m2 |
Raul (dwulokalowy) oferuje możliwość zamieszkania pod jednym dachem dwóm rodzinom, przy jednoczesnym zachowaniu prywatności i wygody. Starannie dopracowany
Cena: 5300 zł
|
|
|
|