Projekt domu Raul (dwulokalowy) WRC1950

kontakt - projekty domów | projektydomow.domiporta.pl

Joanna Skoczylas - Kunda

Porady, oferty, zamówienia

Jak zamówić projekt?

22 451 01 70

pn-pt 8-22, sb 10-18

Pow. użytkowa 152,78 m2 Kubatura 468,35 m3 Wysokość domu 8,94 m
Pow. zabudowy 114,48 m2 Min. szer. działki 22,18 m Kąt nach. dachu 45 st
Pow. dachu 202 m2
Projekt domu Raul (dwulokalowy) progress

Opis projektu

Raul (dwulokalowy) oferuje możliwość zamieszkania pod jednym dachem dwóm rodzinom, przy jednoczesnym zachowaniu prywatności i wygody. Starannie dopracowany

Kup teraz projekt

Cena: 5300 zł

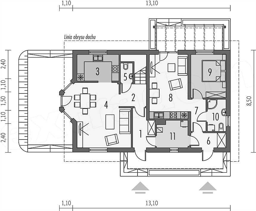
Rzut kondygnacji projektu Raul (dwulokalowy) - Rzut parteru

1 wiatrołap: 5,33 m2
2 hall: 7,05 m2
3 kuchnia: 7,69 m2
4 pokój dzienny + jadalnia: 24,55 m2
5 wc: 1,59 m2
6 wiatrołap: 3,52 m2
7 korytarz: 3,26 m2
8 pokój dzienny + kuchnia: 17,74 m2
9 pokój: 10,26 m2
10 łazienka: 4,06 m2
11 kotłownia: 5,85 m2

Rzut kondygnacji projektu Raul (dwulokalowy) - Rzut poddasza

1 korytarz: 7,58 m2
2 pokój: 15,91 m2
3 garderoba: 4,77 m2
4 pokój: 12,48 m2
5 pokój: 13,13 m2
6 łazienka: 7,04 m2
7 wc: 1,5 m2
8 garderoba: 5,32 m2

Usytuowanie domu na działce

Przekrój

Koszt budowy domu


Orientacyjny koszt budowy domu w stanie surowym zamkniętym bez instalacji: 303 264 zł.

Technologia budowy domu


Ściany zewnętrzne: murowane, dwuwarstwowe, beton komórkowy firmy Ytong 24 cm, ocieplenie wełna mineralna 12 cm. Ściany wewnętrzne: nośne i działowe murowane, cegła wapienno-piaskowa 24 cm i 12 cm. Strop: międzypiętrowy, gęstożebrowy Teriva. Dach: konstrukcja drewniana, ocieplenie wełna mineralna Isover 28 cm, dachówka ceramiczna firmy Röben. Ogrzewanie: kocioł gazowy kondensacyjny firmy Viessmann, rozprowadzenie ciepła: grzejniki firmy Purmo. Wentylacja: grawitacyjna. OZE: kolektory słoneczne firmy Viessmann. Dodatkowo: stacja uzdatniania wody firmy Viessmann. Elewacje: tynk mineralny cienkowarstwowy i okładzina drewniana. Stolarka: drewniana,PCV lub aluminiowa, rolety zewnętrzne naokienne w systemie CleverBox firmy BeClever., drzwi wewnętrzne i wejściowe firmy Hörmann. Okna połaciowe: rozwiązania technologiczne firmy Velux Otocznenie: System tarasowy ProDeck - deska kompozytowa Terra w kolorze kasztan.

Elewacje

autor: Pracownia Projektowa ARCHIPELAG

Projekty podobne do Raul (dwulokalowy) WRC1950

Serwis prowadzi Extradom.plRegulaminPolityka prywatności