Opis projektu
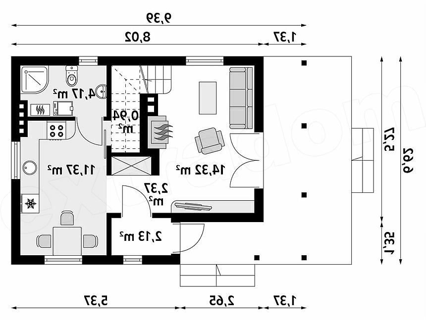
Mały, funkcjonalny dom jednorodzinny z użytkowym poddaszem o prostej, tradycyjnej bryle. Wyraźny podział funkcjonalny na część dzienną (parter) i nocną (poddasze). Na parterze zlokalizowano pokój dzienny z kominkiem i przyległym zadaszonym tarasem, kuchnię z jadalnią i łazienkę. Na poddaszu znajdują się dwie sypialnie, łazienka i garderoba.
