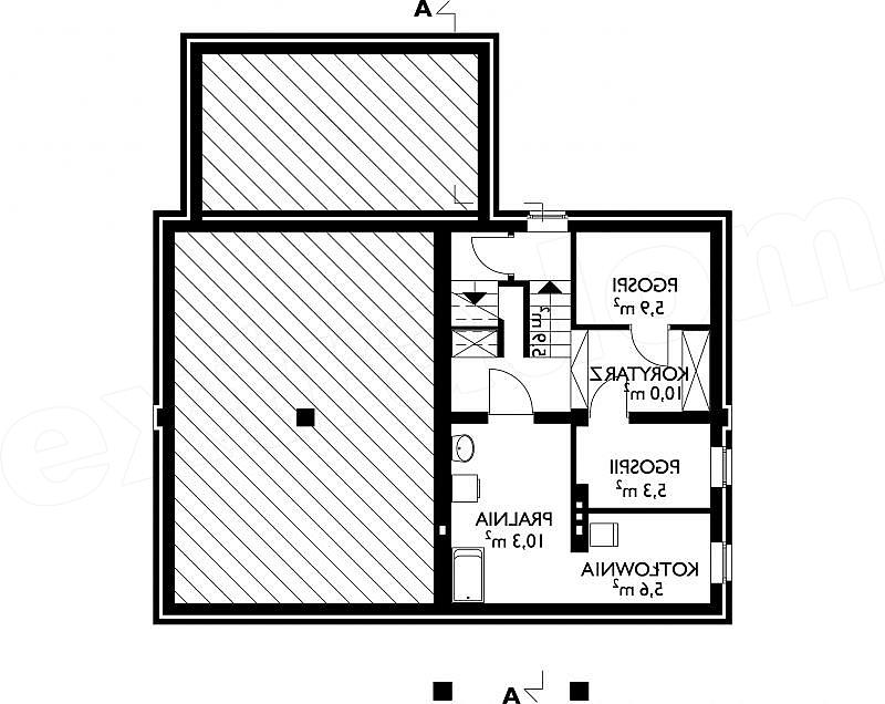
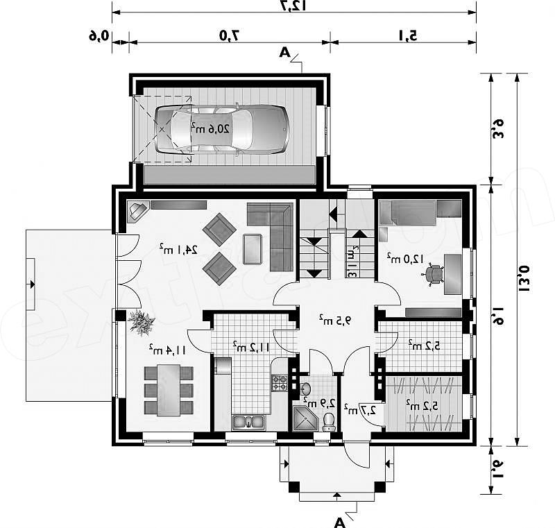
Opis projektu
Dom na planie prostokąta, nakryty dachem dwuspadowym o kącie nachylenia połaci 40°. Z boku dostawiony garaż kryty dachem pulpitowym. Wejście podkreślone wysuniętym daszkiem. Dodatkowo bryłę urozmaica lukarna nad wejściem oraz z boku loggia.
