Opis projektu
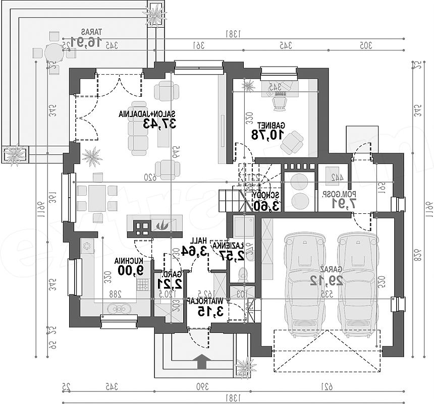
Projekt Opałek II N 2G to nowa wersja jednego z najbardziej lubianych projektów – tradycyjnego Opałka w wersji dwugarażowej. Projekt cechuje się przede wszystkim nowoczesną stylistyką. Zmieniono w nim kolorystykę, niektóre detale budynku oraz elementy wykończenia, układ okien i pokrycie dachu. Kierując się Państwa wcześniejszymi sugestiami, wewnątrz budynku został powiększony salon poprzez zabudowanie podcienia oraz WC – teraz mamy do dyspozycji funkcjonalną łazienkę. Podobnie jak w wersji tradycyjnej przednią część domu zajmuje wiatrołap, łazienka, garderoba oraz kuchnia. Duży hol prowadzi do salonu połączonego z jadalnią. W nowej wersji Opałka salon ma foremny, prostokątny kształt. W tylnej części domu usytuowany jest jeden pokój idealnie pasujący na gabinet. Na poddasze prowadzą ozdobne, ażurowe schody. Strefę nocną tworzą trzy sypialnie i łazienka o zwiększonej powierzchni. Duża sypialnia została zaprojektowana z myślą o jak najlepszym komforcie jej użytkowników – prowadzą z niej wejścia do oddzielnej łazienki i garderoby. Być może zainteresuje Państwa wersja poddasza z sypialniami przewidzianymi dla 5-osobowej rodziny – zobacz rzuty poddasza OPCJA – CZTERY POKOJE (dokumentacja projektowa zawiera obie wersje poddasza). Zachęcamy Państwa do zapoznania się z artykułem, w którym autor projektu Opałek II N 2g, mgr inż. Krzysztof Tomasz Markiewicz opisuje cały proces powstawania projektu Opałek.
