Projekt domu Nowa bez garażu [B] WRF1992

kontakt - projekty domów | projektydomow.domiporta.pl

Joanna Skoczylas - Kunda

Porady, oferty, zamówienia

Jak zamówić projekt?

22 451 01 70

pn-pt 8-22, sb 10-18

Pow. użytkowa 160,5 m2 Kubatura 511 m3 Wysokość domu 9,3 m
Pow. zabudowy 133,9 m2 Min. szer. działki 20,1 m Kąt nach. dachu 40 st
Pow. dachu 228 m2
Projekt domu Nowa bez garażu [B] progress

Opis projektu

Projekt domu z poddaszem Nowa bez garażu [B] z dachem namiotowym, tarasem i wykuszem.

Kup teraz projekt

Cena: 4890 zł

Rzut kondygnacji projektu Nowa bez garażu [B] - Rzut parteru

1 wiatrołap: 4,3 m2
2 hall: 8,9 m2
3 wc: 3,9 m2
4 schody: 4,3 m2
5 garderoba: 2,2 m2
6 pokój: 14 m2
7 garderoba: 1,5 m2
8 łazienka: 2,8 m2
9 pokój dzienny: 33,6 m2
10 kuchnia: 10,9 m2
11 spiżarnia: 2,5 m2
12 kotłownia: 7 m2

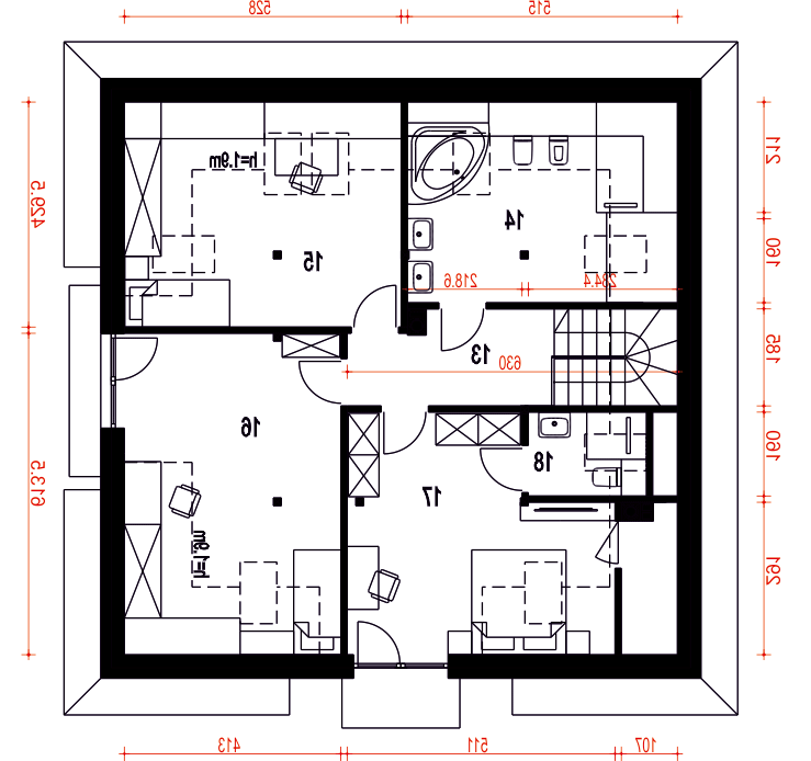
Rzut kondygnacji projektu Nowa bez garażu [B] - Rzut poddasza

13 hall: 6,6 m2
14 łazienka: 11,6 m2 (19,6 m2)
15 pokój: 14,3 m2 (22,5 m2)
16 pokój: 18,3 m2 (25,2 m2)
17 pokój: 17,9 m2 (23,3 m2)
18 łazienka: 2,9 m2 (3,6 m2)

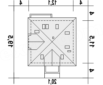
Usytuowanie domu na działce

Przekrój

Koszt budowy domu


Orientacyjny koszt budowy domu w stanie surowym zamkniętym bez instalacji: 474 814 zł.

Technologia budowy domu


Fundamenty: betonowe. Ściany zewnętrzne: porotherm+styropian termo organika. Rodzaj stropu: teriva i. Elewacje: tynk strukturalny. Pokrycie dachu: dachówka cem. lub cer.

Elewacje

autor: Archeco Dom dla Ciebie
Serwis prowadzi Extradom.plRegulaminPolityka prywatności