Opis projektu
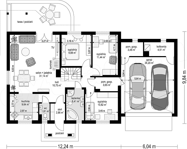
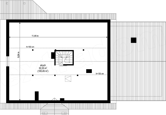
Projekt domu Niezapominajka z garażem 2 to wariant popularnego projektu Niezapominajka – tym razem z podwójnym garażem i obszerną częścią gospodarczą. Dom jednorodzinny, parterowy, przeznaczony dla cztero- pięcioosobowej rodziny. Prostokątna bryła budynku z dobudowanym garażem została przekryta dwuspadowymi dachami. Nieużytkowy strych nad parterem można zaadaptować na poddasze. Architektonicznie dom nawiązuje do typowej tradycyjnej stylistyki. Front domu z zaakcentowanym gankiem wejściowym wspartym na dwóch kolumnach z oknami po bokach, przypomina polski dworek. Wnętrze domu podzielono na część dzienną, z salonem, holem i częściowo otwartą kuchnią, oraz część nocną z trzema sypialniami i łazienką. Zaletą tej wersji projektu jest kotłownia przeniesiona do pomieszczenia za garażem, dzięki czamu dom można ogrzewać gazem, ale też zamiennie paliwem stałym. Dom Niezapominajka z garażem 2 stanowi świetną propozycję dla inwestorów chcących niedrogo wybudować dom, którzy planują zostawić sobie możliwość wykończenia w drugim etapie dodatkowej przestrzeni na strychu – lub po prostu mieć duży przydatny przecież strych. Pracownia posiada wersję odbicia lustrzanego projektu.
