Opis projektu
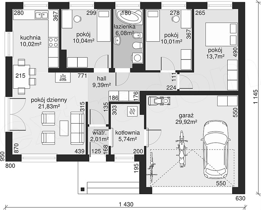
Nowoczesny dom parterowy z wbudowanym garażem dwustanowiskowym. Nieskomplikowana bryła, urozmaicona wejściowym podcieniem, oraz dwuspadowy dach gwarantują minimalne koszty budowy. Funkcjonalny rozkład wnętrza pozwala na maksymalne wykorzystanie dostępnej przestrzeni. Dom ten z pewnością przypadnie do gustu rodzinom ceniącym sobie wygodę i oszczędność. Nachylenie połaci dachu pod kątem 30o skłania do rozważań nad możliwością wykorzystania poddasza. Projekt dostępny również w wersji z dachem o kącie nachylenia 25°.
