Opis projektu
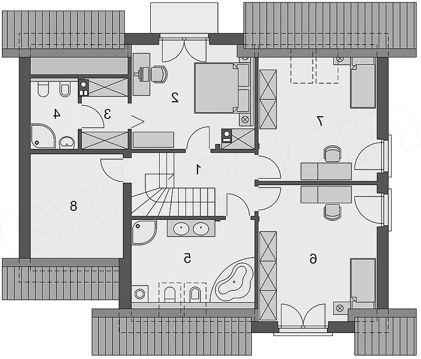
Projekt zgodny z wymaganiami WT2021. Dom z poddaszem użytkowym, przeznaczony dla 4-5-osobowej rodziny. Na parterze znajduje się przestronny pokój dzienny połączony z jadalnią oraz otwarta kuchnia. Wyjście na taras z podcieniem jest możliwe zarówno z salonu jak i z dodatkowego pokoju, który może pełnić funkcję gabinetu. Na poddaszu znajdują się trzy sypialnie, dwie łazienki oraz garderoba. Nad garażem można zaadaptować strych nieużytkowy dostępny bezpośrednio z klatki schodowej na dodatkowe pomieszczenie gospodarcze lub pokój. Projekt w standardzie posiada dodatkowo projekt ogrzewania kominkiem z płaszczem wodnym. Projekt dostępny w wersji z garażem dwustanowiskowym NEMEZJUSZ 2. Projekty podobne to: MAKSYM i ALFEUSZ.
