Opis projektu
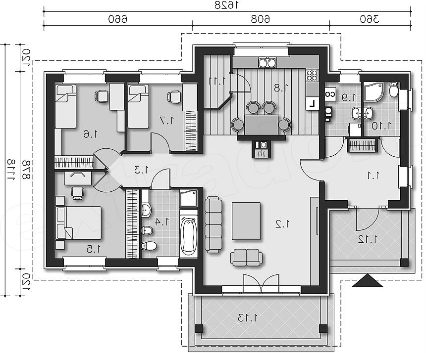
Przestronny i funkcjonalny dom dla 4 osobowej rodziny. Architektura dzięki urokliwym zadaszeniom nad tarasami i wyważonej bryle łatwo wpisze się w zastałe otoczenie. Bryła wzbogacona została przeszkleniami, nadającymi jej nieco nowoczesności. Z dobrze doświetlonego wiatrołapu dostać możemy się do łazienki z prysznicem, kotłowni z pralnią i do strefy dziennej domu. Salon z dużymi przeszkleniami i ciekawo zaaranżowanym miejscem na kominek oraz kuchnia z jadalnią tworzy jedną harmonijną całość. Dalej mamy strefę nocna, do której należą trzy sypialnie i łazienka. Dodatkowym atutem domu LMB45 jest spiżarnia przy kuchni.
