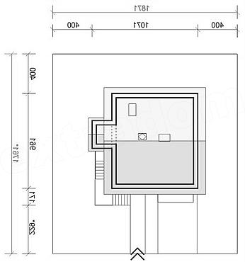
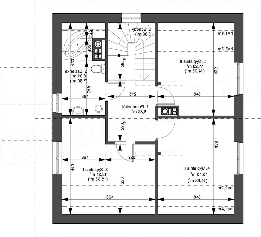
Opis projektu
Budynek mieszkalny jednorodzinny wolnostojący; podpiwniczony i z poddaszem użytkowym; wbudowany garaż. Funkcja: w podpiwniczeniu garaż, kotłownia, łazienka i pomieszczenie gospodarcze, pokój hobby; na parterze pokój dzienny, kuchnia z jadalnią i łazienka; na poddaszu trzy sypialnie i łazienka. Średniej wielkości dom, posadowiony na działce ze sporym spadkiem, dzięki temu łatwo wjechać do garażu nawet zimą, a przyziemie doświetlone jest światłem dziennym. Wygodnie zamieszka tu nawet sześcioosobowa rodzina. W przyziemiu obok pomieszczeń gospodarczych zaprojektowano pokój hobby. Można urządzić tu na przykład domową siłownię, a wtedy tężyzna fizyczna nie będzie pozostawiać nic do życzenia. Na parterze wielki pokój dzienny i kuchnia z jadalnią. Na poddaszu trzy sypialnie. Trzeba jednak pamiętać, że mieszkanie w takim domu, z pomieszczeniami aż na trzech kondygnacjach wymaga od mieszkańców dobrej kondycji.
