Projekt domu Mokka Modern WOF1116

kontakt - projekty domów | projektydomow.domiporta.pl

Joanna Skoczylas - Kunda

Porady, oferty, zamówienia

Jak zamówić projekt?

22 451 01 70

pn-pt 8-22, sb 10-18

Pow. użytkowa 98,77 m2 Kubatura 791,75 m3 Wysokość domu 7,55 m
Pow. zabudowy 137,85 m2 Min. szer. działki 20,91 m Kąt nach. dachu 35 st
Pow. dachu 212 m2 EUco 50,95 kWh/(m2*rok)
Projekt domu Mokka Modern progress

Opis projektu

Mokka modern to mały nowoczesny dom parterowy, który świetnie wpisuje się w każde otoczenie, a zarazem posiada swój oryginalny styl. Dzięki bardzo prostej formie jest tani i łatwy w budowie. Mimo niewielkiego rozmiaru oferuje bardzo rozbudowaną funkcję i wygodę użytkowania. Istotną cecha projektu jest podział na strefę dzienną i nocną. W tej pierwszej zlokalizowano przestronny salon z jadalnią, oraz dużą kuchnię ze spiżarnią. Dom posiada również wiatrołap z miejscem na szafę, oraz dodatkową toaletę. W stropie nad holem zaprojektowano otwór na schody składane, prowadzące na strych. Ważnym elementem każdego domu, bez garażu, jest pomieszczenie gospodarcze z bezpośrednim wyjściem na ogród. Umieszczono w nim piec na paliwo stałe. Dodatkowo przewidziano również instalację gazową dla osób chcących korzystać z ogrzewania gazowego. W części nocnej zaprojektowano trzy komfortowe sypialnie, łazienkę i garderobę. W projekcie zastosowano wyłącznie typowe i sprawdzone rozwiązania, co znacznie ułatwi realizację. Aby zapewnić niskie koszty eksploatacji i nie zwiększać kosztów budowy, w projekcie zastosowano rozwiązania energooszczędne na poziomie ekonomicznie uzasadnionym.

Kup teraz projekt

Cena: 3999 zł

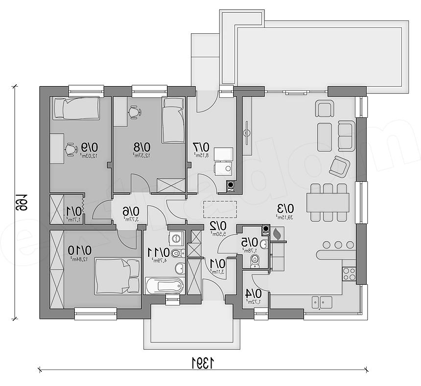
Rzut kondygnacji projektu Mokka Modern - Rzut parteru

1 wiatrołap: 3,11 m2
2 hall: 5,5 m2
3 pokój dzienny + kuchnia: 39,15 m2
4 spiżarnia: 1,72 m2
5 wc: 1,78 m2
6 korytarz: 3,77 m2
7 pomieszczenie gospodarcze: 8,15 m2
8 pokój: 12,37 m2
9 pokój: 12,03 m2
10 pokój: 12,84 m2
11 łazienka: 5,84 m2
12 garderoba: 1,71 m2

Usytuowanie domu na działce

Przekrój

Koszt budowy domu


Orientacyjny koszt budowy domu w stanie surowym zamkniętym bez instalacji: 196 642 zł.

Technologia budowy domu


Fundamenty żelbetowe. Ściany nośne i działowe z pustaków ceramicznych. Strop gęstożebrowy. Konstrukcja dachu drewniana. Pokrycie dachu dachówką betonową lub ceramiczną.

Elewacje

autor: Archand
Serwis prowadzi Extradom.plRegulaminPolityka prywatności