Opis projektu
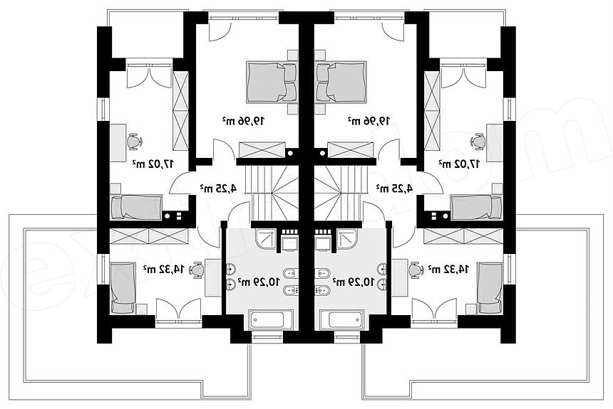
Miętowy to projekt piętrowego domu jednorodzinnego w zabudowie bliźniaczej przeznaczonego dla 4 osobowej rodziny. Projekt charakteryzuje się nowoczesnym designem z płaskim dachem i rozległymi tarasami. Układ funkcjonalny domu został podzielony na dwie strefy. Na parterze zaprojektowano strefę dzienną z salonem, jadalnią i kuchnią. Program funkcjonalny parteru uzupełnia łazienka, pomieszczenie gospodarcze pod schodami oraz kotłownia gazowa z wejściem przez garaż. Na piętrze znajdują się 3 pokoje oraz rodzinna łazienka. W bryle budynku zaprojektowano także dwustanowiskowy garaż, nad którym znajduje się duży taras. Elewacja budynku została wykończona białym tynkiem, bez dodatkowych zdobień, nadając budynkowi minimalistycznego, modernistycznego charakteru.
