Projekt domu Malutki 7 BSA2260

kontakt - projekty domów | projektydomow.domiporta.pl

Joanna Skoczylas - Kunda

Porady, oferty, zamówienia

Jak zamówić projekt?

22 451 01 70

pn-pt 8-22, sb 10-18

Pow. użytkowa 118,98 m2 Kubatura 642 m3 Wysokość domu 8,65 m
Pow. zabudowy 101,31 m2 Min. szer. działki 20,99 m Kąt nach. dachu 45 st
Pow. dachu 106,08 m2
Projekt domu Malutki 7 progress

Opis projektu

Projekt Malutki 7 to dom parterowy z poddaszem użytkowym. Podobnie jak pozostałe projekty z tej serii, Malutki 7 został zaprojektowany w stylu nowoczesnej stodoły. Nowoczesna bryła budynku została rozbudowana o przestronny salon. W projekcie wygospodarowano miejsce na dużą kuchnię z jadalnią i spiżarnią. Na parterze zaprojektowano także kotłownię na gaz, dodatkowy pokój oraz łazienkę z prysznicem. Pod schodami wydzielono pomieszczenie gospodarcze. Na poddaszu zaprojektowano łazienkę z pralnią oraz trzy sypialnie w tym jedną z prywatną garderobą.

Kup teraz projekt

Cena: 5749 zł

Rzut kondygnacji projektu Malutki 7 - Rzut parteru

1 wiatrołap: 3,22 m2
2 hall: 5,47 m2
3 spiżarnia: 1,79 m2
4 kuchnia: 24,3 m2
5 pokój dzienny: 19,12 m2
6 korytarz: 1,91 m2
7 pokój: 8,59 m2
8 łazienka: 3,93 m2
9 kotłownia: 3,73 m2

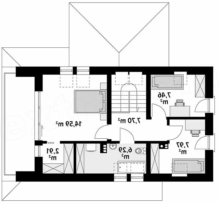
Rzut kondygnacji projektu Malutki 7 - Rzut poddasza

1 korytarz: 7,7 m2
2 pokój: 14,59 m2
3 garderoba: 2,91 m2
4 łazienka: 6,29 m2
5 pokój: 7,97 m2
6 pokój: 7,46 m2

Usytuowanie domu na działce

Koszt budowy domu


Orientacyjny koszt budowy domu w stanie surowym zamkniętym bez instalacji: 431 091 zł.

Technologia budowy domu


Ściany: 2-warstwowe - bloczki z betonu komórkowego SOLBET 24 cm + wełna mineralna ISOVER. Stropy: żelbetowe, wylewane. Dach: blachodachówka płaska modułowa Ruukki Hyygge, kąt nachylenia 45°. Ogrzewanie: gazowe.

Elewacje

autor: Domy w Stylu
Serwis prowadzi Extradom.plRegulaminPolityka prywatności