Opis projektu
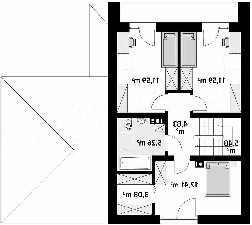
Projekt domu Malutki 4 jest skierowany do inwestorów potrzebujących domu o nowoczesnej bryle z dwustanowiskowym garażem. Budynek zapewni wygodne warunki dla 4-osobowej rodziny. W układzie funkcjonalnym zastosowano podział na strefę wspólną i prywatną pokrywający się z podziałem na kondygnacje. Poddasze jest przestrzenią przeznaczoną dla domowników. Kuchnia, jadalnia i pokój dzienny tworzą wspólną otwartą przestrzeń o dużych przeszkleniach zapewniających dostęp światła dziennego. Naturalnym powiększeniem części dziennej jest zadaszony taras i pergola, które stanowią atrakcyjne, osłonięte miejsce do wypoczynku na świeżym powietrzu. Dodatkową zaletą projektu jest niewielka spiżarnia będąca częścią kuchni. Na poddaszu znajdują się trzy sypialnie, łazienka oraz garderoba.
