Opis projektu
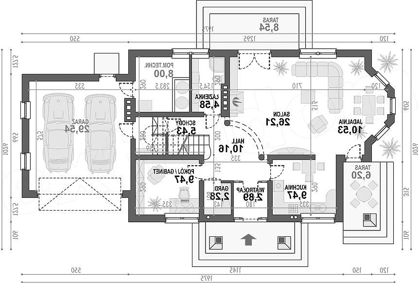
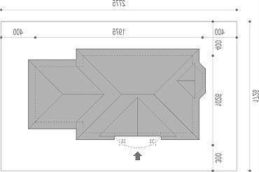
Koszałek 2G to projekt domu w stylu dworku polskiego. Cechą charakterystyczną tego projektu są masywne kolumny, na których wsparty jest balkon nad wejściem do domu oraz zadaszenie nad jednym z dwóch tarasów. Ozdobą domu są trójkątne lukarny – w jednej usytuowany jest balkon. Garaż dwustanowiskowy posiada dodatkowe wejście z tyłu domu. Dom jest bardzo przestronny. Na parterze zaplanowano duży salon z jadalnią wkomponowaną w trapezowym wykuszu. Oprócz standardowych pomieszczeń, parter obejmuje także gabinet i pomieszczenie techniczne. Dzięki powiększeniu garażu powierzchnia poddasza uległa zmianie – zwiększono jedną z sypialni. Projekt przeznaczony dla rodziny wieloosobowej.