Opis projektu
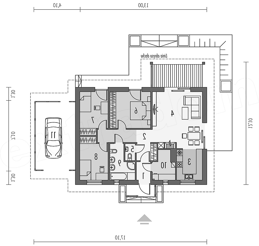
Kornel VI (z wiatą) ENERGO to dom, który do każdego krajobrazu wprowadzi powiew świeżości i nowoczesnej elegancji. Prosty, ale jednocześnie stylowy i intrygujący, z wnętrzem, w którym rządzi funkcjonalna wygoda. Dużym atutem projektu jest otwarty charakter strefy dziennej, który integruje domowników wokół wspólnych zajęć i zaprasza do odpoczynku w towarzystwie ognistych refleksów kominka. Atrakcyjną częścią domu jest również kameralny taras, który letnią porą staję się ulubionym miejscem spotkań całej rodziny.
