Projekt domu KL5 Kuchnia letnia / Bud. gospodarczy SLN2153

kontakt - projekty domów | projektydomow.domiporta.pl

Joanna Skoczylas - Kunda

Porady, oferty, zamówienia

Jak zamówić projekt?

22 451 01 70

pn-pt 8-22, sb 10-18

Pow. użytkowa 20,85 m2 Kubatura 84 m3 Wysokość domu 3,68 m
Pow. zabudowy 27,21 m2 Min. szer. działki 14,52 m Kąt nach. dachu 3 st
Pow. dachu 25,12 m2
Projekt domu KL5 Kuchnia letnia / Bud. gospodarczy progress

Opis projektu

KL5 kuchnia letnia z pom. gospodarczym, WC i tarasem

Kup teraz projekt

Cena: 1400 zł

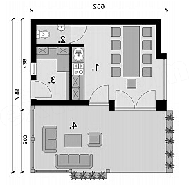
Rzut kondygnacji projektu KL5 Kuchnia letnia / Bud. gospodarczy - Rzut parteru

1 biesiadzisko ogrodowe: 15,48 m2
2 wc: 1,4 m2
3 pomieszczenie gospodarcze: 3,97 m2
4 taras: (20,37 m2)

Koszt budowy domu


Orientacyjny koszt budowy domu w stanie surowym zamkniętym bez instalacji: 20 282 zł.

Technologia budowy domu


Technologia tradycyjna. Ściany zewnętrzne nośne murowane grubości 25 cm. Wszystkie ściany wykonane pustaków ceramicznych "POROTHERM". Więźba dachowa drewniana. Pokrycie dachu - gont bitumiczny lub papa.

Elewacje

autor: Pro arte Arkadiusz Woch, Krzysztof Biodrowicz spółka jawna

Projekty podobne do KL5 Kuchnia letnia / Bud. gospodarczy SLN2153

Serwis prowadzi Extradom.plRegulaminPolityka prywatności