Projekt domu Kiwi 3 WOF1051

kontakt - projekty domów | projektydomow.domiporta.pl

Joanna Skoczylas - Kunda

Porady, oferty, zamówienia

Jak zamówić projekt?

22 451 01 70

pn-pt 8-22, sb 10-18

Pow. użytkowa 137,43 m2 Kubatura 688,09 m3 Wysokość domu 8,73 m
Pow. zabudowy 104,03 m2 Min. szer. działki 19,1 m Kąt nach. dachu 40 st
Pow. dachu 182 m2 EUco 34,77 kWh/(m2*rok)
Projekt domu Kiwi 3 progress

Opis projektu

Kiwi 3 to kolejna wersja bardzo popularnego projektu Kiwi. Dom posiada teraz większą powierzchnię, oraz dodatkowe pomieszczenia. Projekt przewidziano dla 4-5 osobowej rodziny. Otwarty salon połączony z kuchnią zapewni komfortową przestrzeń dla życia rodzinnego i towarzyskiego. Dodatkowym atutem domu jest zlokalizowany na parterze pokój gościnny ( gabinet ), oraz łazienka, dzięki czemu poddasze pozostanie strefą wyłącznie dla mieszkańców domu. Projekt posiada duże pomieszczenie gospodarcze z wyjściem na ogród – nieodzowne w domach bez garażu. Rozmiary pomieszczenia pozwalają na zainstalowanie kotła na paliwo stałe. Nie zapomniano również o pomieszczeniach pomocniczych – spiżarni, garderobie, oraz pralni połączonej z łazienką. Prosta bryła i nieskomplikowana konstrukcja, sprawią że dom będzie tani i łatwy w budowie. W projekcie zastosowano wyłącznie typowe i sprawdzone rozwiązania technologiczne, co znacznie ułatwi realizację i zminimalizuje koszty eksploatacji.

Kup teraz projekt

Cena: 3899 zł

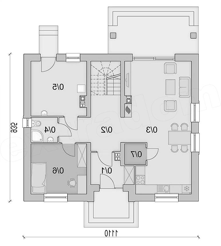
Rzut kondygnacji projektu Kiwi 3 - Rzut parteru

1 wiatrołap: 4,59 m2
2 hall + schody: 13,83 m2
3 pokój dzienny + kuchnia: 32,34 m2
4 łazienka: 2,62 m2
5 pomieszczenie gospodarcze: 11,84 m2
6 pokój: 11,16 m2
7 spiżarnia: 1,7 m2

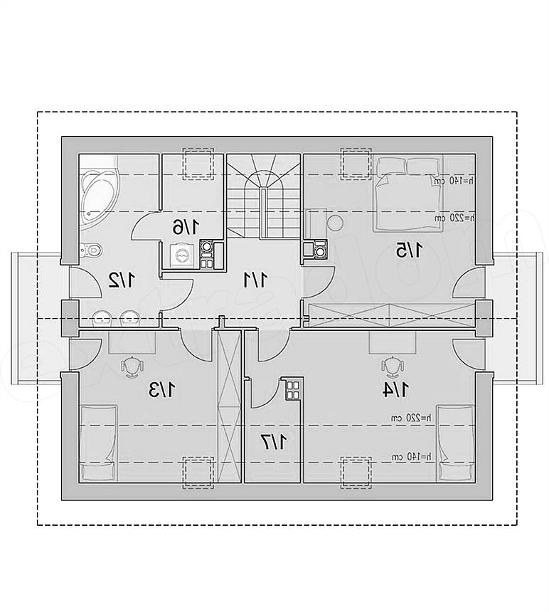
Rzut kondygnacji projektu Kiwi 3 - Rzut poddasza

1 hall: 6,46 m2
2 łazienka: 6,97 m2
3 pokój: 12,05 m2
4 pokój: 14,52 m2
5 pokój: 14,7 m2
6 pomieszczenie gospodarcze: 2,55 m2
7 garderoba: 2,1 m2

Usytuowanie domu na działce

Koszt budowy domu


Orientacyjny koszt budowy domu w stanie surowym zamkniętym bez instalacji: 167 000 zł.

Technologia budowy domu


Fundamenty żelbetowe.Ściany nośne i działowe z pustaków ceramicznych.Strop gęstożebrowy.Konstrukcja dachu drewniana.Pokrycie dachu dachówką ceramiczną.

Elewacje

autor: Archand

Projekty podobne do Kiwi 3 WOF1051

Serwis prowadzi Extradom.plRegulaminPolityka prywatności