Projekt domu Kasjopea 2 wariant B WAH1489

kontakt - projekty domów | projektydomow.domiporta.pl

Joanna Skoczylas - Kunda

Porady, oferty, zamówienia

Jak zamówić projekt?

22 451 01 70

pn-pt 8-22, sb 10-18

Pow. użytkowa 156,09 m2 Wysokość domu 8,55 m
Pow. zabudowy 144,83 m2 Min. szer. działki 18,65 m Kąt nach. dachu 25 st
Pow. dachu 221,19 m2 EUco 36,5 kWh/(m2*rok)
Projekt domu Kasjopea 2 wariant B progress

Opis projektu

Wariant połowy bliźniaka.

Kup teraz projekt

Cena: 6230 zł

Rzut kondygnacji projektu Kasjopea 2 wariant B - Rzut parteru

1 wiatrołap: 3,6 m2
2 hall: 12,72 m2
3 kuchnia: 11,07 m2
4 pokój dzienny + jadalnia: 42,58 m2
5 pomieszczenie gospodarcze: 2,29 m2
6 wc: 1,98 m2
7 kotłownia: 7,85 m2
8 garaż dwustanowiskowy: 32,95 m2

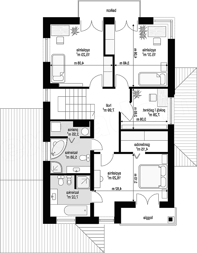
Rzut kondygnacji projektu Kasjopea 2 wariant B - Rzut 1 piętra

1 hall: 7,99 m2
2 pokój: 15,37 m2
3 pokój: 15,23 m2
4 pralnia: 2,55 m2
5 łazienka: 5,98 m2
6 łazienka: 7,02 m2
7 pokój: 16,29 m2
8 garderoba: 4,15 m2
9 pokój: 7,28 m2

Usytuowanie domu na działce

Koszt budowy domu


Orientacyjny koszt budowy domu w stanie surowym zamkniętym bez instalacji: 229 812 zł.

Technologia budowy domu


Fundamenty: betonowe ławy i ściany fundamentowe z bloczków betonowych. Ściany zewnętrzne: pustaki porotherm + styropian + tynk. Strop: Teriva. Elewacje: tynk cienkowarstwowy. Pokrycie dachu: dachówka. Nachylenie dachu: 25 stopni.

Elewacje

autor: MG Projekt
Serwis prowadzi Extradom.plRegulaminPolityka prywatności