Projekt domu Kamieniec - szkielet drewniany lekki KRD2011

Pow. użytkowa 134,3 m2 Kubatura 1007,5 m3 Wysokość domu 6,4 m
Pow. zabudowy 213,8 m2 Min. szer. działki 29,1 m Kąt nach. dachu 30 st
Pow. dachu 352 m2
Projekt domu Kamieniec - szkielet drewniany lekki progress

Opis projektu

Bryłę budnyku tworzą trzy zestawione ze sobą prostopadłościany przykryte dachami wielospadowymi o kącie nachylenia połaci 30°. Rozbudowaną bryłę wzbogacają dwa podcienia: wejściowy oraz wyjścia na taras.

Projekt został
wycofany z oferty

W razie pytań prosimy o kontakt
z Centrum Obsługi Klienta tel: 71 715 20 60

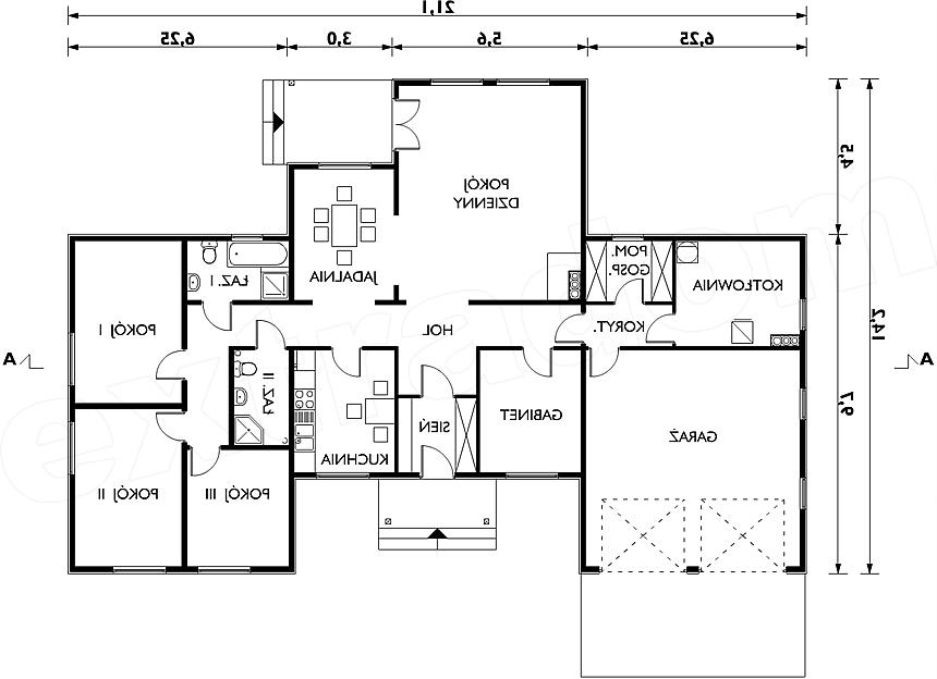
Rzut kondygnacji projektu Kamieniec - szkielet drewniany lekki - Rzut parteru

1 garaż jednostanowiskowy: 37,4 m2
2 pokój dzienny: 30,9 m2
3 hall: 20,1 m2
4 pokój: 14,4 m2
5 pokój: 13,4 m2
6 kotłownia: 10,4 m2
7 jadalnia: 10 m2
8 kuchnia: 10 m2
9 łazienka: 4,9 m2
10 wiatrołap: 4,7 m2
11 łazienka: 4,2 m2
12 pomieszczenie gospodarcze: 4,1 m2
13 korytarz: 3 m2
14 pokój: 9,8 m2
15 pokój: 9,7 m2

Usytuowanie domu na działce

Przekrój

Technologia budowy domu


Technologia i konstrukcja: szkielet drewniany lekki. Ściany zewnętrzne: Szkielet drewniany. Izolacja produktami Knauf Insulation. Okładziny z płyt cementowych Aquapanel Outdoor firmy KNAUF. Ściany wewnętrzne: Szkielet drewniany. Izolacja produktami Knauf Insulation. Okładziny z płyt gipsowo-włóknowych Vidiwall gr. 12,5 mm firmy KNAUF. Strop: Drewniany. Izolacja produktami Knauf Insulation. Konstrukcja dachu: wiązary drewniane. Rodzaj schodów:. Typ ogrzewania: kocioł na gaz. Pokrycie dachu: dachówka ceramiczna - Imerys Toiture. Elewacja: tynk cienkowarstwowy oraz okładziny z betonowego kamienia elewacyjnego RELIEF.

Elewacje

autor: Archeton

Projekty podobne do Kamieniec - szkielet drewniany lekki KRD2011

Serwis prowadzi Extradom.plRegulaminPolityka prywatności