Opis projektu
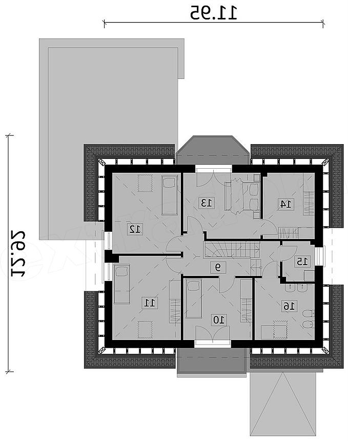
Ka203 T to projekt domu parterowego z poddaszem użytkowym. Bryłę budynku zwieńczono wielospadowym dachem. Atrakcyjności dodają mu lukarny zaprojektowane po każdej stronie domu. Z wiatrołapem połączono jednostanowiskowy garaż i pomieszczenie gospodarcze. W jego sąsiedztwie znajduje się także pokój, toaleta oraz schody prowadzące do strefy nocnej. Dużą kuchnię, jadalnię i salon zaprojektowano w tylnej części domu z widokiem na ogród i wyjściem na przestronny taras. Poddasze to prywatna strefa domowników, zapewniająca komfort i swobodę. Znajdują się tutaj łazienka, pralnia oraz cztery sypialnie, w tym jedna posiada prywatną garderobę.
