Opis projektu
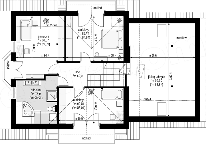
Projekt domu Julka 3 to wersja wariantowa projektu Julka. Budynek o podobnym, jak w wersji podstawowej układzie wnętrz na parterze i poddaszu, ale przekryty dwuspadowymi dachami. Dzięki temu dom będzie można lokalizować na działkach, gdzie przepisy wymagają stosowania dwuspadowych dachów, a zabraniają domów z dachami wielospadowymi. Domek Julka 3, pomimo uproszczenia bryły prezentuje się bardzo atrakcyjnie. W powstałych bocznych szczytach umieszczone zostały dodatkowe okna i balkonik nad wykuszem jadalni. Frontowa i tylna lukarna z balkonami upiększają pozostałe elewacje. Wbudowany w bryłę domu podcień ogrodowy pozwala na korzystanie z tarasu w deszczowe dni. We wnętrzu nadal panuje pierwotny - jak w Julce - podział na przestrzeń dzienną na parterze, z salonem, jadalnią, holem z wyeksponowanymi schodami i częściowo otwartą kuchnią, oraz na sypialnie na poddaszu. W tej wersji projektu sypialnie i łazienka mogą być trochę większe, ponieważ przy dwuspadowym dachu odeszła część "skosów". Również strych nad garażem jest większy i teraz można go z powodzeniem zaadaptować na dwa dodatkowe pokoje. Projekt domu Julka 3 dostępny jest także w odbiciu lustrzanym w wersji bazowej ( projekt domu Julka ), w nieco mniejszej wersji ( projekt domu Julka 2 ), tańsza w reaizacji ( projekt domu Julka 4 ).
