Projekt domu Juka BSA2212

kontakt - projekty domów | projektydomow.domiporta.pl

Joanna Skoczylas - Kunda

Porady, oferty, zamówienia

Jak zamówić projekt?

22 451 01 70

pn-pt 8-22, sb 10-18

Pow. użytkowa 89,82 m2 Kubatura 465,76 m3 Wysokość domu 7,18 m
Pow. zabudowy 64,87 m2 Min. szer. działki 9,85 m Kąt nach. dachu 2 st
Pow. dachu 46,36 m2
Projekt domu Juka progress

Opis projektu

Juka to projekt domu w zabudowie szeregowej. Poszczególne segmenty posiadają dwie pełne kondygnacje i praktyczny układ funkcjonalny. Każdy moduł podzielony jest funkcjonalnie na dwie strefy dzienną i nocną. Na parterze znajduje się wiatrołap, hol, otwarta kuchnia z pokojem dziennym, łazienka i dodatkowy pokój. Na piętrze zaprojektowano ogólnodostępną łazienkę, 3 sypialnie, w tym jedna z własną garderobą.

Kup teraz projekt

Cena: 4549 zł

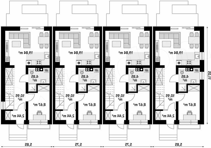
Rzut kondygnacji projektu Juka - Rzut parteru

1 wiatrołap: 2,44 m2
2 pokój: 8,67 m2
3 korytarz: 10,95 m2
4 łazienka: 4,85 m2
5 pokój dzienny + kuchnia + jadalnia: 19,84 m2

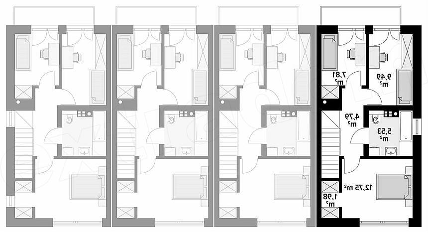
Rzut kondygnacji projektu Juka - Rzut 1 piętra

1 korytarz: 4,79 m2
2 pokój: 12,75 m2
3 garderoba: 1,98 m2
4 łazienka: 5,53 m2
5 pokój: 9,49 m2
6 pokój: 7,81 m2

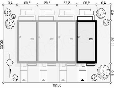
Usytuowanie domu na działce

Koszt budowy domu


Orientacyjny koszt budowy domu w stanie surowym zamkniętym bez instalacji: 322 234 zł.

Technologia budowy domu


Ściany: 2-warstwowe - pustak ceramiczny + styropian Termo Organika. Stropy: żelbetowe, wylewane. Dach: papa termozgrzewalna, kąt nachylenia 2°. Ogrzewanie: gazowe.

Elewacje

autor: Domy w Stylu
Serwis prowadzi Extradom.plRegulaminPolityka prywatności