Projekt domu Imbir BSA1700

kontakt - projekty domów | projektydomow.domiporta.pl

Joanna Skoczylas - Kunda

Porady, oferty, zamówienia

Jak zamówić projekt?

22 451 01 70

pn-pt 8-22, sb 10-18

Pow. użytkowa 50,4 m2 Kubatura 244 m3 Wysokość domu 6,15 m
Pow. zabudowy 68,1 m2 Min. szer. działki 16,25 m Kąt nach. dachu 30 st
Pow. dachu 115 m2 EUco 17,72 kWh/(m2*rok)
Projekt domu Imbir progress

Opis projektu

Mały, wygodny dom parterowy. Prosta bryła i oszczędny detal czynią dom tanim w budowie i użytkowaniu. Program funkcjonalny idealny dla małej rodziny. Duży taras połączony z pokojem dziennym.

Kup teraz projekt

Cena: 4349 zł

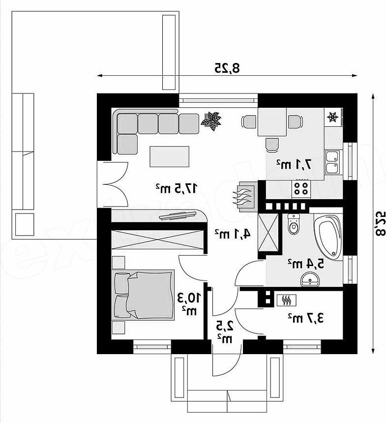
Rzut kondygnacji projektu Imbir - Rzut parteru

1 wiatrołap: 2,5 m2
2 hall: 4,1 m2
3 łazienka: 5,4 m2
4 kuchnia + jadalnia: 7,1 m2
5 pokój dzienny: 17,5 m2
6 pokój: 10,3 m2
7 kotłownia: 3,7 m2

Usytuowanie domu na działce

Koszt budowy domu


Orientacyjny koszt budowy domu w stanie surowym zamkniętym bez instalacji: 129 380 zł.

Technologia budowy domu


Ściany: 2-warstwowe - pustak ceramiczny + styropian. Stropy: belki drewniane + wełna mineralna. Dach: dachówka ceramiczna CREATON, kąt nachylenia 30°. Ogrzewanie: gazowe.

Elewacje

autor: Domy w Stylu

Projekty podobne do Imbir BSA1700

Serwis prowadzi Extradom.plRegulaminPolityka prywatności