Projekt domu Illecebrosus V G2 SLS1123

kontakt - projekty domów | projektydomow.domiporta.pl

Joanna Skoczylas - Kunda

Porady, oferty, zamówienia

Jak zamówić projekt?

22 451 01 70

pn-pt 8-22, sb 10-18

Pow. użytkowa 175,09 m2 Kubatura 1103,6 m3 Wysokość domu 4,08 m
Pow. zabudowy 296,7 m2 Min. szer. działki 29,9 m Kąt nach. dachu 1 st
Projekt domu Illecebrosus V G2 progress

Opis projektu

Nowoczesny parterowy dom jednorodzinny, wolnostojący, niepodpiwniczony z dużym garażem dwustanowiskowym i komfortową strefą dzienną z dużymi przeszkleniami i tarasami.

Kup teraz projekt

Cena: 6799 zł

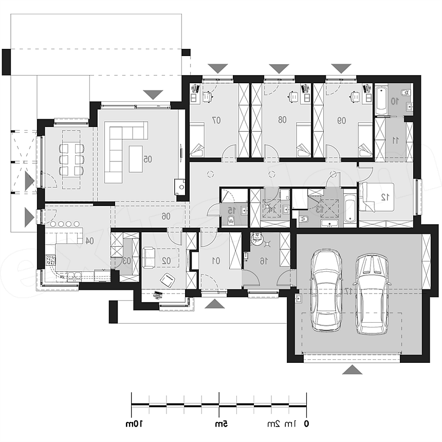
Rzut kondygnacji projektu Illecebrosus V G2 - Rzut parteru

1 wiatrołap: 7,22 m2
2 pokój: 11,38 m2
3 spiżarnia: 3,69 m2
4 kuchnia: 16,85 m2
5 pokój dzienny + jadalnia: 44,23 m2
6 korytarz: 17,36 m2
7 pokój: 14,16 m2
8 pokój: 14,16 m2
9 pokój: 14,16 m2
10 łazienka: 3,97 m2
11 garderoba: 5,3 m2
12 pokój: 11,39 m2
13 pomieszczenie gospodarcze: 7,94 m2
14 łazienka: 4,98 m2
15 łazienka: 3,28 m2
16 pomieszczenie gospodarcze: 8,97 m2
17 garaż dwustanowiskowy: 50,2 m2

Usytuowanie domu na działce

Przekrój

Technologia budowy domu


Ściany zewnętrzne: pustak ceramiczny LEIER o gr. 25cm + styropian Termo Organika o gr. 20cm + tynk. Stropodach: stropodach niewentylowany żelbetowy, pokryty membraną dachową z warstwą dociążającą ze żwiru. Zadaszenia tarasu: zadaszenia w postaci pergoli drewnianej oraz żelbetowe. Źródło ciepła: kocioł gazowy, kominek z płaszczem wodnym na biomasę i zestaw solarny (c.w.u.).Pomieszczenie gospodarcze spełnia wymagania kotłowni na paliwo stałe,w związku z czym na etapie adaptacji istnieje możliwość zmiany sposobu ogrzewania. Wentylacja: grawitacyjna. Stolarka okienna i drzwiowa: okna i drzwi PVC, rolety zewnętrzne, brama garażowa segmentowa.

Elewacje

autor: Malachit
Serwis prowadzi Extradom.plRegulaminPolityka prywatności