Opis projektu
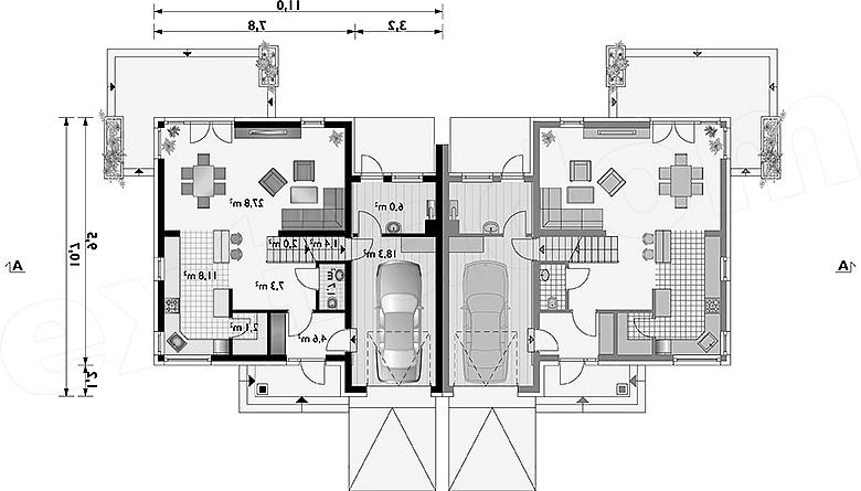
Tylko 15,1m szerokości musi mieć działka do zabudowy w granicy, aby zrealizować na niej projekt domu Igor Grota Duo. Wygodny, średniej wielkości dla 4-5 osób rozplanowano w części mieszkalnej na rzucie zwartego prostokąta i dostawiono do niego węższy, wysunięty ku frontowi, trakt garażu z kotłownią. Na parterze, oprócz przedsionka i WC przy obszernym, otwartym holu oraz spiżarni, zamknięto tylko przestrzeń pod częścią biegu klatki schodowej. Pokój dzienny jest dzięki temu niezwykle przestronny, z mnóstwem światła wpadającego z czterech stron świata, m.in. przez narożne okna jadalni i kuchni. Podział schodów na biegi różnej długości pozwolił wydzielić na osobnym poziomie gabinet z łazienką i pralnię dostępną z podestu, a główną część nocną na piętrze właściwym. Trzy sypialnie i kolejna łazienka mają tu bardzo wygodne rozmiary. Częściowe podpiwniczenie, dostępne z garażu, mieści pomieszczenia gospodarcze i hobby. Prostopadłościan głównej bryły w projekcie domu Igor Duo przykrywa czterospadowy, niezbyt stromy dach, a część garażową - dwuspadowy. Zadaszenie nad tarasem wejścia głównego ciągnie się aż nad wjazd do garażu i rysuje w elewacji efektowne poziome akcenty. Współczesny styl podkreślają okna bez podziałów.
